EasyManua.ls Logo

Tomberlin 2010 E-Merge - Page 79

Tomberlin 2010 E-Merge
151 pages
Print Icon
To Next Page IconTo Next Page
To Next Page IconTo Next Page
To Previous Page IconTo Previous Page
To Previous Page IconTo Previous Page
Loading...
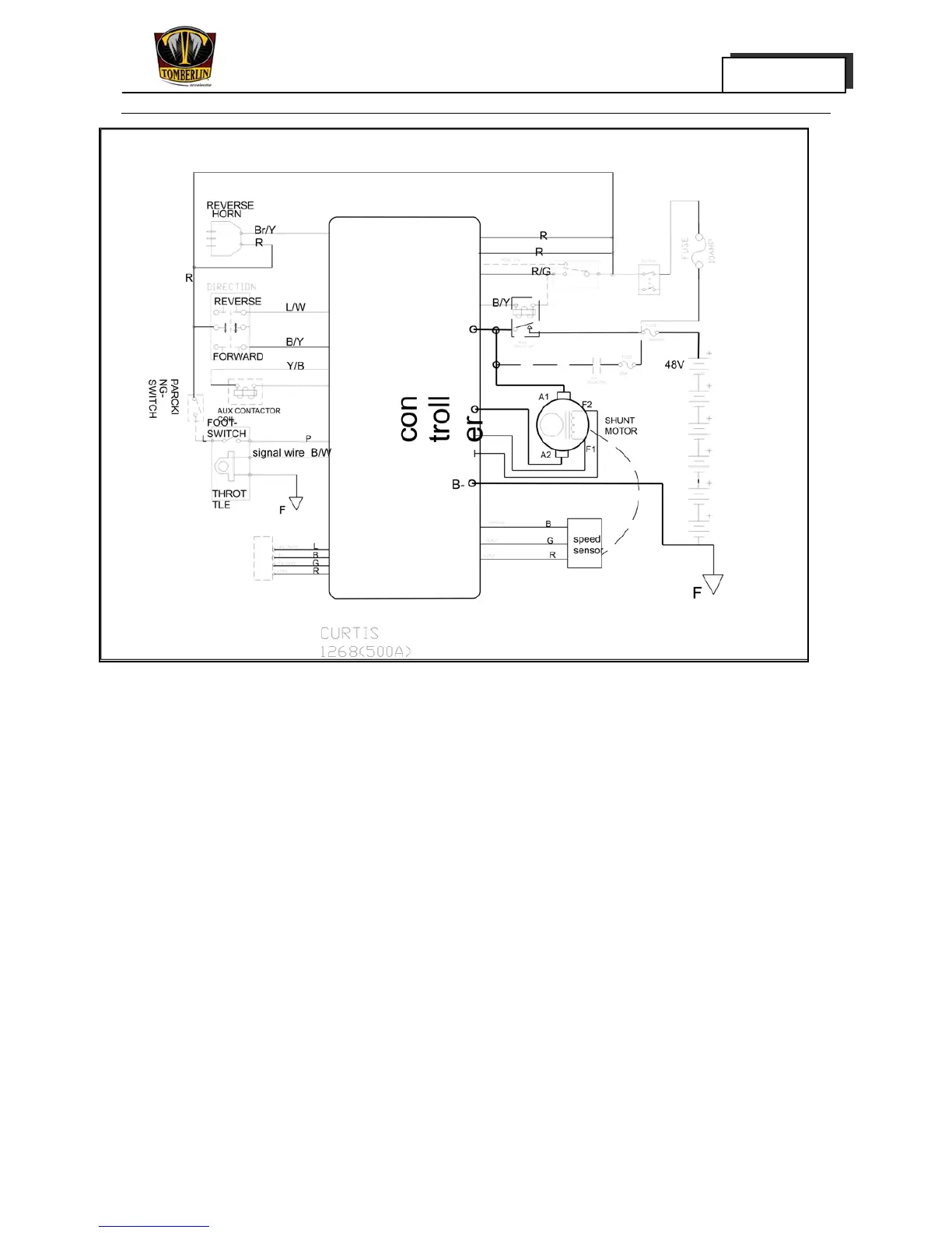
Electric Component
MERGE 9-7
Chapter 9
Control circuit

Table of Contents

Related product manuals