EasyManua.ls Logo

Woodward HighPROTEC - Installation Diagram 8-Pushbutton Version

Woodward HighPROTEC
1369 pages
Print Icon
To Next Page IconTo Next Page
To Next Page IconTo Next Page
To Previous Page IconTo Previous Page
To Previous Page IconTo Previous Page
Loading...
Installation and Connection
Installation Diagram 8-Pushbutton Version
Even when the auxiliary voltage is switched-off, unsafe voltages might remain
at the device connections.
The installation diagram shown in this section is exclusively valid for devices
with 8 pushbuttons at the front side of the HMI.
(INFO-, C-, OK-, CTRL-Pushbutton and 4 Softkeys (Pushbuttons)).
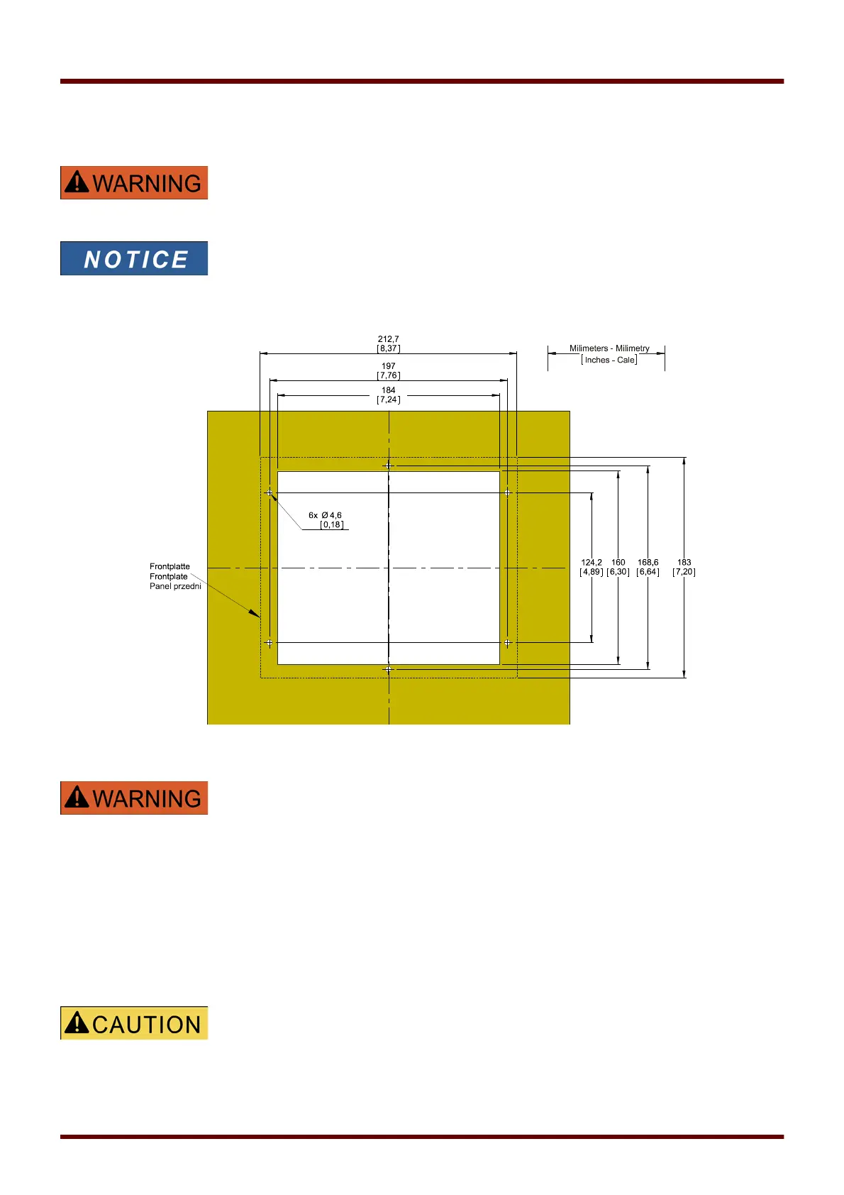
B2 Housing Door Cut-out (8-Pushbutton Version). (All dimensions in mm, except dimensions in brackets [inch].)
The housing must be carefully grounded. Connect a ground cable
(protective earth, 4 to 6 mm
2
[AWG 11‒9], tightening torque 1.7 Nm
[15 lb⋅in]) to the housing, using the screw that is marked with the ground
symbol (at the rear side of the device).
Moreover, the power supply card needs a separate ground connection
(functional earth, min. 2.5 mm
2
[≤ AWG 13], tightening torque 0,56 ‒
0,79 Nm [5‒7 lb⋅in ]). See the “Terminal Marking” diagram in Section “DI-4
X – Power Supply and Digital Inputs” to check for the correct terminal.
All grounding connections (i. e. protective and functional earth) must be
low-inductance, i. e. as short as possible, and national standards – if
applicable – must be followed.
Be careful. Do not overtighten the mountings nuts of the relay
(M4 metric 4 mm). Check the torque by means of a torque wrench (1.7 Nm
[15 In⋅lb]). Over-tightening the mounting nuts could cause personal injury or
damage the relay.
32 MCDGV4 DOK-HB-MCDGV4-2E

Table of Contents

Other manuals for Woodward HighPROTEC

Related product manuals