EasyManua.ls Logo

YASKAWA iQpump1000 - Page 50

YASKAWA iQpump1000
508 pages
Print Icon
To Next Page IconTo Next Page
To Next Page IconTo Next Page
To Previous Page IconTo Previous Page
To Previous Page IconTo Previous Page
Loading...
n
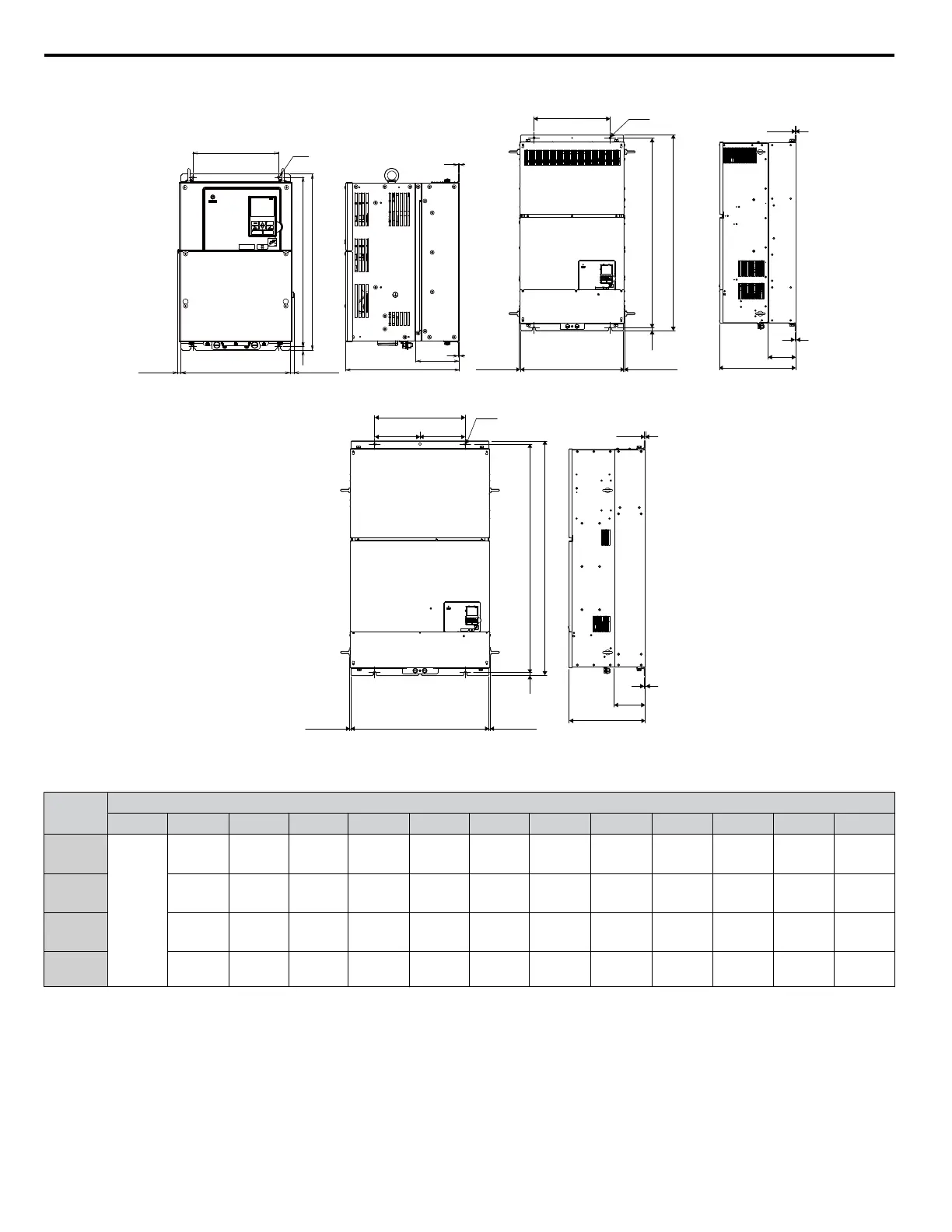
IP00/Open Type Enclosure Drives
Figure 1
W1
4-d
H1
H
H2
Max W2
W
t2
t1
D1
D
D1
D
t2
H1
H2
H
4-d
W1
W
Max W2
t1
Figure 2
Max W2
D1
D
W
H1
H2
H
6-d
t2
Figure 3
t1
W1
W3
W3
Max W2
Max W2
Max W2
Table 2.8 Dimensions for IP00/Open Type Enclosure: 200 V Class
Drive
Model
Dimensions (in)
Figure W H D W1 W2 H1 H2 D1 t1 t2 d Wt. (lb)
2A0250A
<1>
1
450
(17.72)
705
(27.76)
330
(12.99)
325
(12.80)
10
(0.39)
680
(26.77)
12
(0.49)
130
(5.12)
3
(0.13)
3
(0.13)
M10
76
(167.6)
2A0312A
<1>
450
(17.72)
705
(27.76)
330
(12.99)
325
(12.80)
10
(0.39)
680
(26.77)
12
(0.49)
130
(5.12)
3
(0.13)
3
(0.13)
M10
80
(176.4)
2A0360A
<1>
500
(19.69)
800
(31.50)
350
(13.78)
370
(14.57)
10
(0.39)
773
(30.43)
13
(0.51)
130
(5.12)
5
(0.18)
5
(0.18)
M12
98
(216.1)
2A0415A
500
(19.69)
800
(31.50)
350
(13.78)
370
(14.57)
10
(0.39)
773
(30.43)
13
(0.51)
130
(5.12)
5
(0.18)
5
(0.18)
M12
99
(218.3)
<1> Customers may convert these models to IP20/NEMA 1, UL Type 1 enclosures using an IP20/NEMA 1, UL Type 1 Kit. Refer to IP20/NEMA 1,
UL Type 1 Kit Selection on page 52 to select the appropriate kit.
2.1 Mechanical Installation
50
YASKAWA TOEP YAIP1W 01F YASKAWA AC Drive - iQpump1000 User Manual

Table of Contents

Other manuals for YASKAWA iQpump1000

Related product manuals