EasyManua.ls Logo

Allen-Bradley SLC 500

Allen-Bradley SLC 500
244 pages
To Next Page IconTo Next Page
To Next Page IconTo Next Page
To Previous Page IconTo Previous Page
To Previous Page IconTo Previous Page
Loading...
Chapter 4
Publication
1747-6.2
Mounting Your SLC 500
Control System
This chapter provides mounting dimensions for:
4, 7, 10, and 13-slot chassis
link coupler (AIC)
Data Terminal Access Module (DTAM)
DTAM Plus Operator Interface
DTAM Micro Operator Interface
AIC+ Advanced Interface Converter
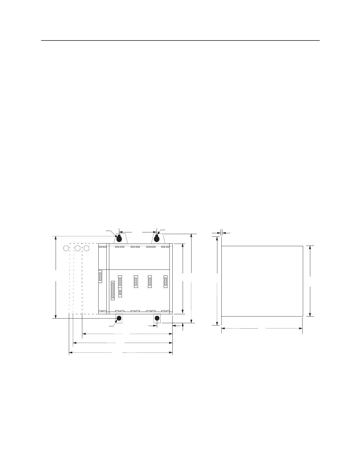
You can mount the modular hardware style units directly to the back
panel of your enclosure using the mounting tabs and #10 and #12
screws. The torque requirement is 3.4 N-m (30 in-lbs) maximum.
4-Slot Modular Chassis
45
(1.77)
215
(8.46)
235
(9.25)
70
(2.76)
145
(5.71)
Front View
171
(6.73)
140
(5.51)
(6.22)
171
(6.73)
140
158
1
1 Dia.
(0.433)
(5.51)
Left Side View
1.0
(0.04)
5.5 Dia.
(0.217)
5.5 Dia
(0.217)
14
(0.55)
millimeters
(inches)
261
(10.28)
123
Dimensions for power supply catalog number 1746-P1
Dimensions for power supply catalog number 1746-P2 & 1746-P3
Dimensions for power supply catalog number 1746-P4
Mounting Modular
Hardware Style Units

Table of Contents

Other manuals for Allen-Bradley SLC 500

Related product manuals