EasyManua.ls Logo

Allen-Bradley SLC 500

Allen-Bradley SLC 500
244 pages
To Next Page IconTo Next Page
To Next Page IconTo Next Page
To Previous Page IconTo Previous Page
To Previous Page IconTo Previous Page
Loading...
4–4
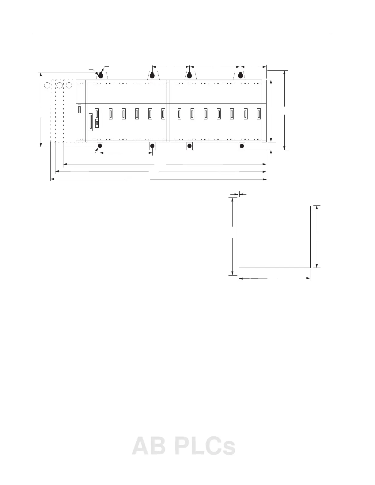
Mounting Your SLC 500 Control System
Publication
1747-6.2
13-Slot Modular Chassis
145
(5.71)
171
(6.73)
140
(5.51)
Left Side View
1.0
(0.04)
158
(6.22)
140
(5.51)
140
(5.51)
560
(22.05)
540
(21.26)
55
(2.17)
1
1 Dia.
(0.433)
5.5 Dia.
(0.217)
171
(6.73)
105
(4.13)
Front View
(5.51)
140
14
(0.55)
millimeters
(inches)
586
(23.07)
123
5.5 Dia
(0.217)
Dimensions for power supply catalog number 1746-P1
Dimensions for power supply catalog number 1746-P2 & 1746-P3
Dimensions for power supply catalog number 1746-P4
AB PLCs

Table of Contents

Other manuals for Allen-Bradley SLC 500

Related product manuals