EasyManua.ls Logo

artisan 8640B - Page 297

artisan 8640B
411 pages
Print Icon
To Next Page IconTo Next Page
To Next Page IconTo Next Page
To Previous Page IconTo Previous Page
To Previous Page IconTo Previous Page
Loading...
Model 8640B TM 9-4935-601-14-7&P
Change 25 (Contd)
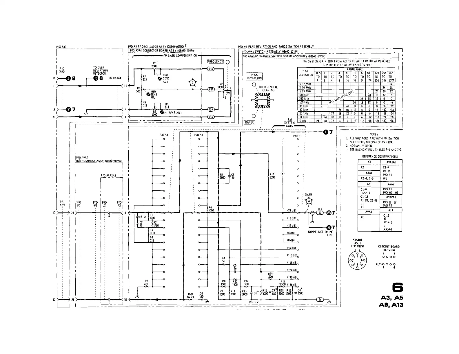
Figure 8-25. FM Amplifiers Schematic Diagram (2 of 2, P/O Change 25)
7-63
PIO
AJ3
I
PIO
TO
OVER
DEVIATION
DETECTOR
PIO
A3
RF
OSCILLATOR
ASSY
108641hill001
t
P'lQlJ~
~ONNECTOR
BO~RQ_ASsno864o:""""'.rf!"""l"'.'1_-61--
l
I
FM
GAIN
COMPENSATION
R2t
~Q,
...---__;;
2000
~---------o--<938
'
P/0
A9
PEAK
DEVIATION
AND
RANGE
SWITCH
ASSEMBLY
~
A9Ai
SWITCH
~S~EMBLY
I08640-IIJ1791_
- -
.o._
____
- - - - -
~
0
A9AIA2
FM
GAIN
SWITCH
BOARD
ASSEMBLY
108640-602541
~
I
- - - -
FM
SYSTEM
GAIN
ldBI
FROM
A5TP3
TO-A9TPA
IWITH
A7
RE;,VED
I
OR
WITH
LEVELS
AT
A9TPA
<0
3Vrmsl
I
xr
14
>--+--8
8
I
7 /
cos
P/0
XA3A4
~ll
!
II
13~7
I
PIO
A9A2
INTERCONNECT
ASSY
108640-602561
--~
I
PIO
PIO
PIO
PIO
P/0 I
X~5
Pl
W2
12
P,2
I
10~23
I
'
16
I
I
I
' I
I : I : : :I I
R7
178
LOW
'.1
SENS
AD1
~~-,-M-1-0-------~~-<~~
lfl~~~s
R8
5\l
R6
1000
C4
56
R9
(roJ
C3
56
I
I I
Rll
liDO
Rl4
OFF
1000
1·6
dBI
1·12
dBI
1·18
dBI
1-24
dB
PEAK
RANGE
l~zl
DEVIATION
0.
5
I 2
4 8
16
32
64
128
256
Sl2
TO
TO TO
TO
TO
TO
TO
TO
TO
TO
TO
l
2
4
8
16
32
64
128
256
512
1024
5.12
MHZ
24
2.
56
MHz
24
18
1.28
MHz
cf:~'
24
18
12
640kHZ
~'~"'
24
18
12
6
320
kHZ
>}~'-'
24
18
12
6 0
IIIJ
kHz
~>}~
24
18
12
6 0
-6
~kHz
40kHz
20kHz
24
10kHz
24
18
5kHz
24
18
12
7
GAIN
c8*
1500
NON-FUNCTIONING
LINE
24
18
12
6
24
18
12
6 0
0
·6
-6
-12
-12
-18
I I
I
18
12
6
0
"6
-]2
-18
·24
12
6
0
-6
-12
-18 -24
-l)
6 0
"6
·]2
·]8
-24
·J()
-36
r---__
_:~
I I
I
I
I I
I I
I
I
All
VOLTAGES
~~~ITH
FM
SWITCH
SET
TO
OFF;
TOLERANCE
IS
±
1~.
NORMALLY
OPEN.
SEE
BACKDATING,
TABLES
7-1
AND
7-2.
REFERENCE
DESIGNATIONS
A3
A9AIA2
R2
Cl-<1
A3A4
Rl-20
P/0 Sl
R2-4,
7-<1
WI
AS
A9A2
Cl-9
P/0 PI
CRS-13
P/0
WI
W2
QJ-12
A9A2Al
Rl-20,
22·41
P/0 Jl.
12
Ul
Kl
P/0
P2
A9A!
AJ3
Rl
cu
Jl
R2-4,
6
51
XA3M
A3MUI
A~ I
TOP
VIEW
CIRCUIT
BOARD
TOP
VIEW
8 5
0000
KEY<>ooo
I
4
6
A3,
AS
~~
~:
:_:
:ii
R20~
~
12
~
21
'
10
(---------~~16__,.2;..:.K--l~
~
I_ I
_j
-~==~~-~==~~~~~~~~~~~~
A9
1
A13
Artisan Technology Group - Quality Instrumentation ... Guaranteed | (888) 88-SOURCE | www.artisantg.com

Table of Contents