EasyManua.ls Logo

Baumuller BM4400 - Page 46

Baumuller BM4400
360 pages
Print Icon
To Next Page IconTo Next Page
To Next Page IconTo Next Page
To Previous Page IconTo Previous Page
To Previous Page IconTo Previous Page
Loading...
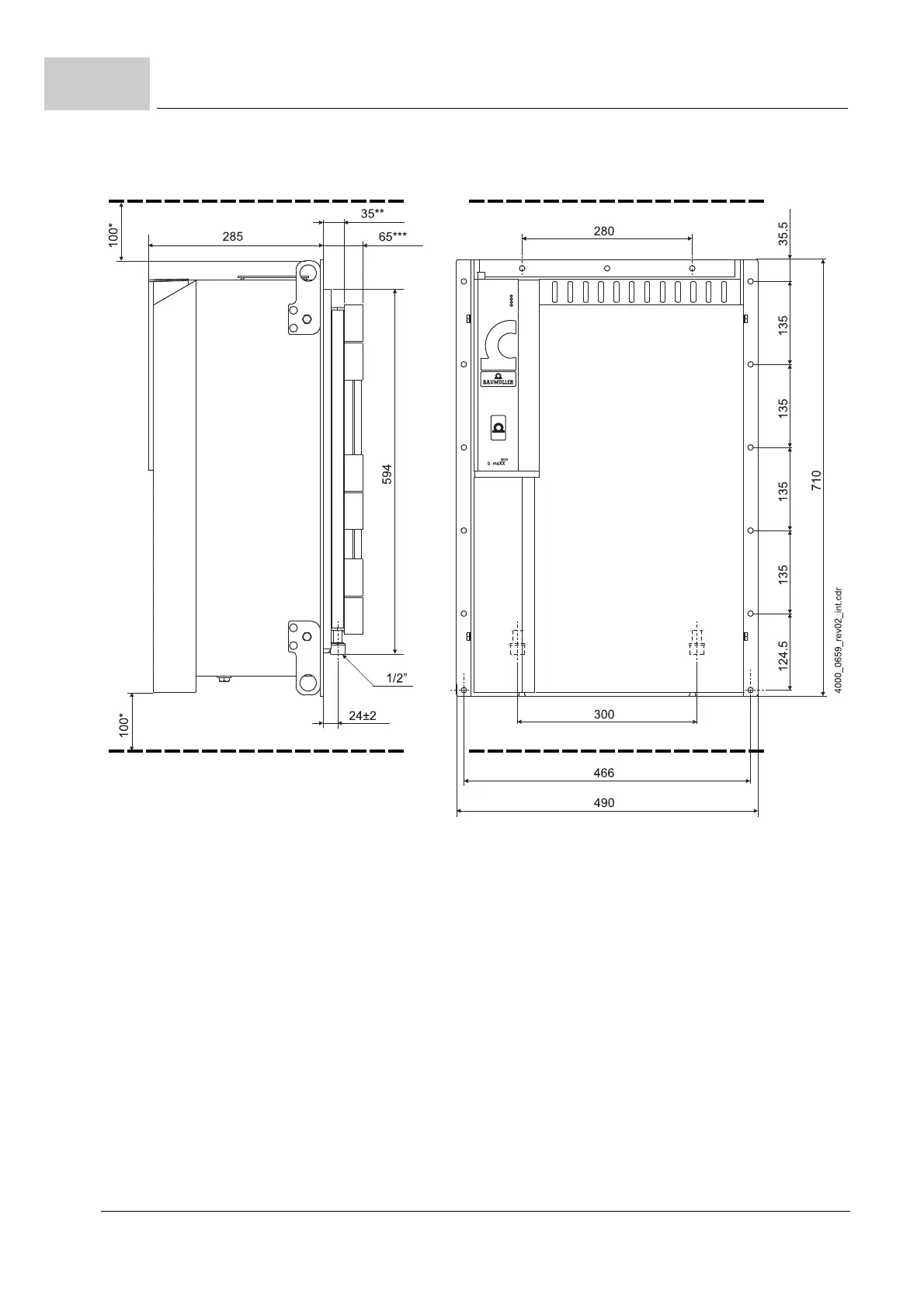
Dimensions
Instruction handbook b maXX BM4400, BM4600, BM4700
Document No.: 5.12008.07 Baumüller Nürnberg GmbH
46
of 358
3.1
*: Observe minimum clearance. Observe ZCoolingfrom page 61.
**: without brake resistor
***: with brake resistor
Figure 20: Dimensions BM466X-FXX-3XXXX and BM476X-FXX-3XXXX

Table of Contents

Related product manuals