EasyManua.ls Logo

Bosch EPS 815 - Dimensions EPS 807;815

Bosch EPS 815
336 pages
Go to English
To Next Page IconTo Next Page
To Next Page IconTo Next Page
To Previous Page IconTo Previous Page
To Previous Page IconTo Previous Page
Loading...
1 689 979 672 2012-06-26| Robert Bosch GmbH
68 | EPS 807 / 815 | Données techniquesfr
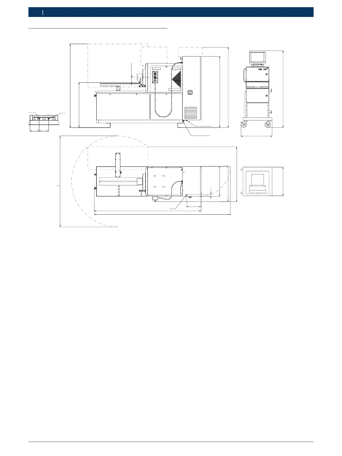
9.6 Dimensions EPS807/815
a
b
321
4
5
4
1690 mm
1765 mm
1565 mm
125 mm
200mm 200mm
max. 1840 mm
min. 1500 mm
987 mm
673 mm
40 mm
656 mm
773 mm
1207 mm
630 mm
2306 mm
2937 mm
310 mm
o 2003 mm
458753 R
1 Encombrement maximal du support des tetes de mesure pour
le KMA802/822 ou le support des eprouvettes graduees pour le
MGT 812/824
2 Encombrement maximal du moniteur et du clavier pour le KMA802
ou le compte-coups et le comptetours pour le MGT 812/824
3 Encombrement maximal du boitier du PC pour le KMA802
4 Branchement au reseau
5 Raccordement de la conduite d‘eau (Raccordement de l’eau de
refroidissement)
a)Raccord d’alimentation G½" A ISO 228- 1
b)Raccord de retour G½" A ISO 228- 1
! A la construction, prévoir un réducteur de pression
(réglé sur 250 kPa), un filtre de protection et une
soupape d'arrêt dans le système d'arrivée d'eau de
refroidissement.
! La temrature de l'eau de refroidissement ne doit
pas dépasser 1C ; dans le cas contraire, prévoir à
la construction une installation de refroidissement
adéquate.
! L'évacuation de l'eau de refroidissement dans les
canalisations se fait à travers un séparateur d'huile,

Table of Contents

Other manuals for Bosch EPS 815

Related product manuals