EasyManua.ls Logo

Danfoss VLT AutomationDrive FC 300 - Page 131

Danfoss VLT AutomationDrive FC 300
296 pages
To Next Page IconTo Next Page
To Next Page IconTo Next Page
To Previous Page IconTo Previous Page
To Previous Page IconTo Previous Page
Loading...
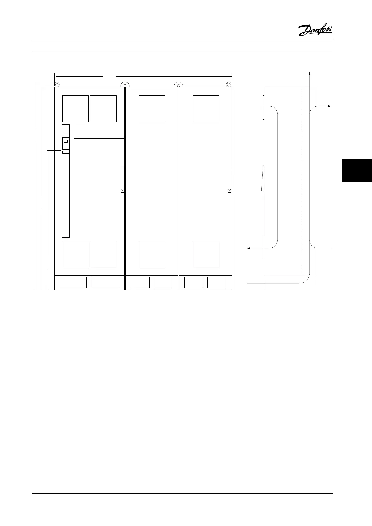
130BB571.10
2000
607
IP/21
NEMA 1
IP/54
NEMA 12
2800
m3/Hr
2472
CFM
1854
CFM
3150
m3/Hr
2900
CFM
4925
m3/Hr
2280
2205
1497
Figure 6.31 Mechanical Dimensions (mm), F12
Mechanical Installation Design Guide
MG34S222 Danfoss A/S © Rev. 2014-02-10 All rights reserved. 129
6 6

Table of Contents

Other manuals for Danfoss VLT AutomationDrive FC 300

Related product manuals