EasyManua.ls Logo

Dell PowerEdge C6220 II - Page 299

Dell PowerEdge C6220 II
345 pages
To Next Page IconTo Next Page
To Next Page IconTo Next Page
To Previous Page IconTo Previous Page
To Previous Page IconTo Previous Page
Loading...
Installing System Components | 299
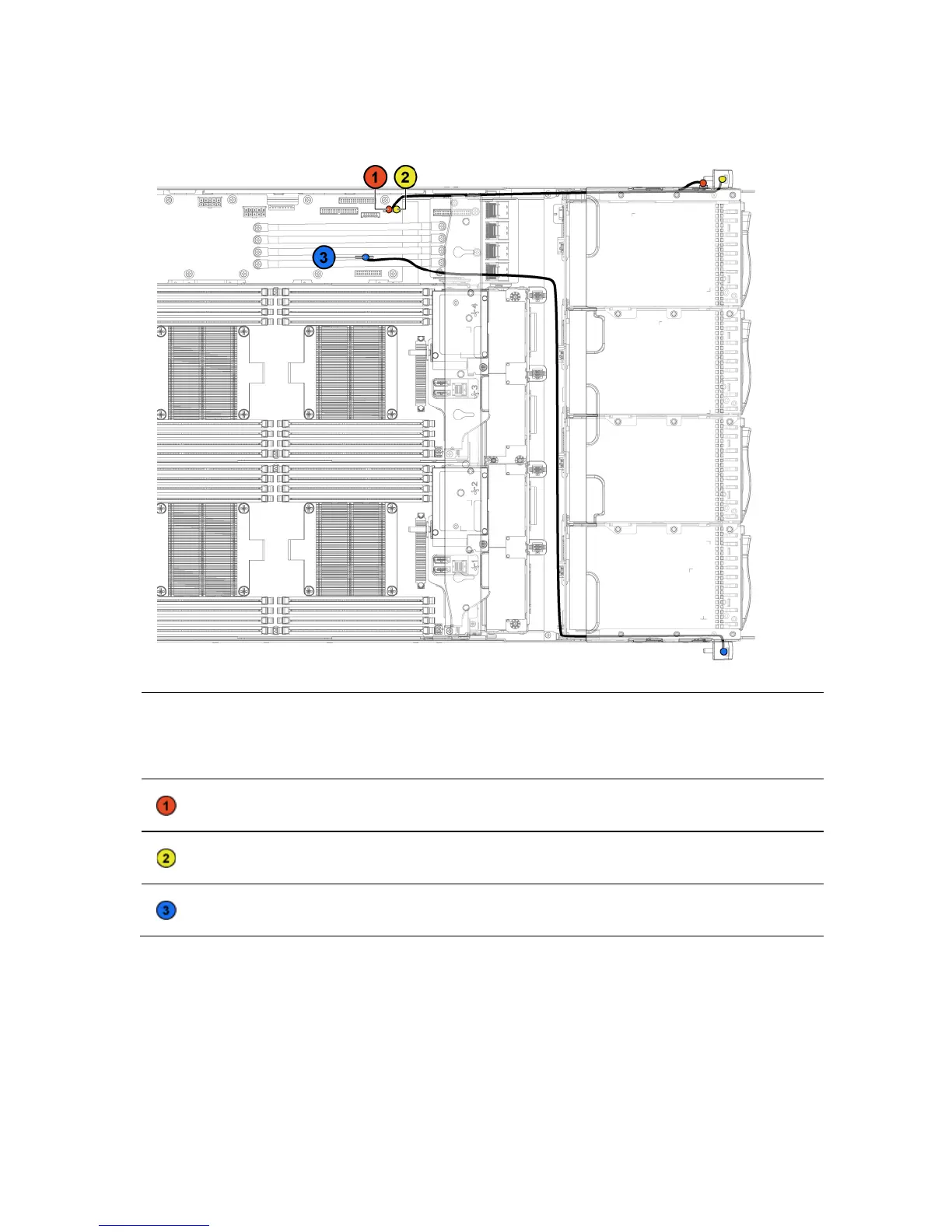
Figure 3-105. Cable RoutingSensor Board and Front Panel
Item
Cable
From
(Power Distribution Board)
To
(Sensor Board and Front
Panels)
Sensor board
cable
Sensor board power
connector (J1)
Sensor Board
Front panel
cable
Front panel connector
(J16)
Front Panel 2
Front panel
cable
Front Panel connector
(J18)
Front panel 1

Table of Contents

Other manuals for Dell PowerEdge C6220 II

Related product manuals