EasyManua.ls Logo

Dodge Stealth 1994 - Page 182

Dodge Stealth 1994
434 pages
Print Icon
To Next Page IconTo Next Page
To Next Page IconTo Next Page
To Previous Page IconTo Previous Page
To Previous Page IconTo Previous Page
Loading...
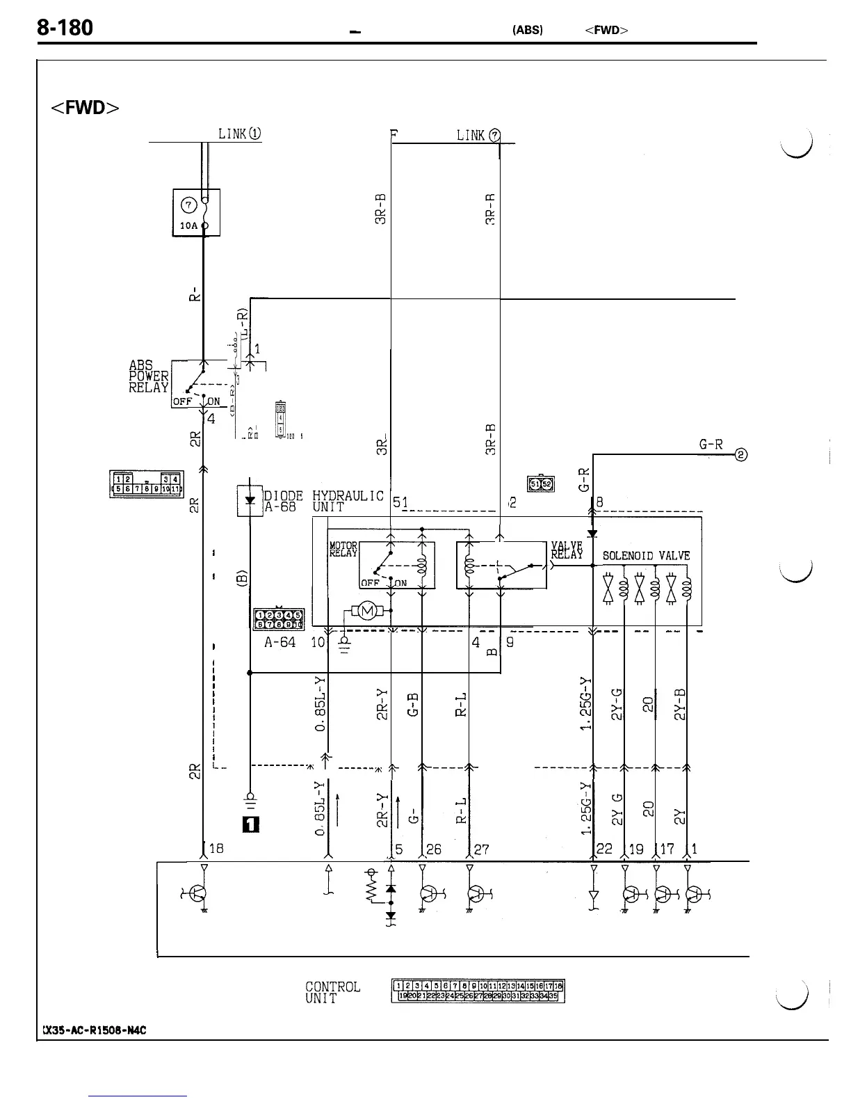
8-180
CIRCUIT DIAGRAMS
-
Anti-lock Braking System
(ABS)
Circuit
<FWD>
ANTI-LOCK BRAKING SYSTEM (ABS) CIRCUIT
<FWD>
FUSIBLE
LINK(?)
F
USIBLE
LINKC
ABS
f;m
C-32
CL
m
h
5
/\
.
F-,&IN
"4
Ri
9,
4
I
I
I
g I
I
I
I
I
I
I
I
I
I
I
I
I
I
I
I
I
I
I
I
I
I
I
I
I
I
I
I
I
I
I
I
I
$5
L-
18
4
DEDICATED
FUSE
A-02X
;
.-
62
!A
3
I!3
123
4
5
m
I
9:
i-2
%
"ASHliE
~~I~AULIC
5l
-----------_
I
(L-R) ,
@Jj
g
12
A-65
4
IL
-
VALVE
RELAY
--
\
/I
<c
@
---
-- --
-
7
5
3
6
-----
\,
--
x,
----
--
---------
\//
2
1
4mg
0
?
>
?
y
I
ii+
Y
F2
a)
%
"
lx
cu
m
d
G
10 3
1
2
--
---------r\
7
----_-,\
T
--
q+
--__
-------
$p
-------9
>
7
6 11
9
>--/L--/L--/\
A
>
n
2
? m
d
%A&
‘I
I
1
I
..-I
2
1
z
w
m
I
E
I
G
z
,22
,19
,17
/\l
L
SOLENOID
VALVE
xixixi
I
ABS
E-12
%SRDL
tX35-AC-R150tbN4C

Table of Contents

Related product manuals