EasyManua.ls Logo

Dodge Stealth 1994 - Page 77

Dodge Stealth 1994
434 pages
Print Icon
To Next Page IconTo Next Page
To Next Page IconTo Next Page
To Previous Page IconTo Previous Page
To Previous Page IconTo Previous Page
Loading...
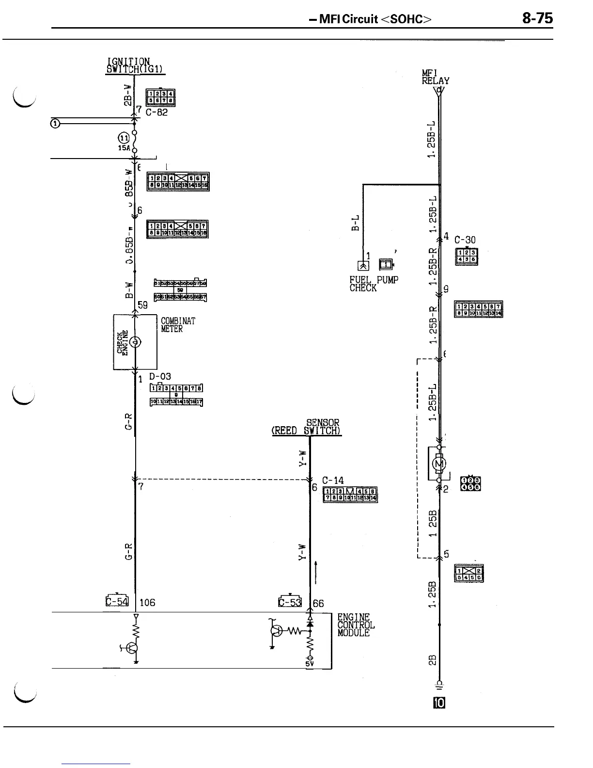
CIRCUIT DIAGRAMS
-
MFI
Circuit
<SOHC>
IGNI’
SWIT’
0
154
3
j C-71
f
e
:
(I
C
‘J
\I
j
D-44
3
c
I
h
z
;
3
c
h
0
t
I\
59
D-04
7r
I
fOX)iiNAT
I ON
I
9
c
106
A
lsil
4
P-++
3N
(IGIl
1
J/B
SPEED
(REED
t
1
A-17
g:
E3
i
pw~KPuMP
2
CONNECTOR
IY
r---
l
I
;I
I
'
23
1
cu
ENSOR
IITCH)
66
I
I
!
i
.
t
-
I
:---
2
c-30
3
c-34
1
1
FUEL
PUMP
F-16
F-14

Table of Contents

Related product manuals