EasyManua.ls Logo

Entec EVRC2A-N6-NT - 7 Protection

Default Icon
306 pages
Print Icon
To Next Page IconTo Next Page
To Next Page IconTo Next Page
To Previous Page IconTo Previous Page
To Previous Page IconTo Previous Page
Loading...
RECLOSER CONTROL EVRC2A-N6,NT http://www.entecene.co.kr
120
ENHANCED
TECHNOLOGY
7. PROTECTION
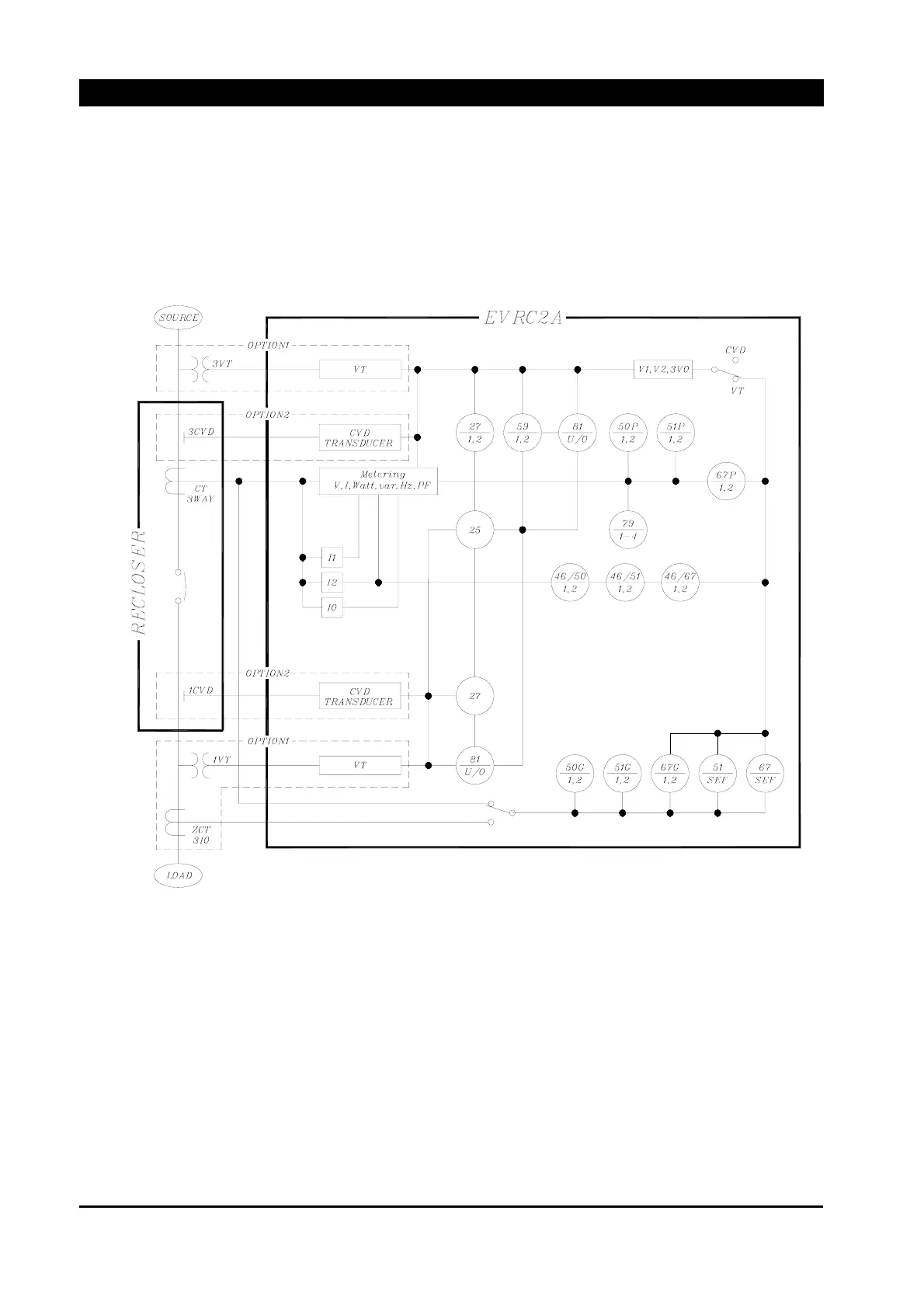
Protective Elements Block diagram - ANSI Designations
Figure 7-1. Protective Elements Block Diagram - ANSI Designations

Table of Contents