EasyManua.ls Logo

Entec EVRC2A-N6-NT - 13.9. EVRC2 A Wiring Diagram - VD Type

Default Icon
306 pages
Print Icon
To Next Page IconTo Next Page
To Next Page IconTo Next Page
To Previous Page IconTo Previous Page
To Previous Page IconTo Previous Page
Loading...
RECLOSER CONTROL EVRC2A-N6,NT http://www.entecene.co.kr
266
ENHANCED
TECHNOLOGY
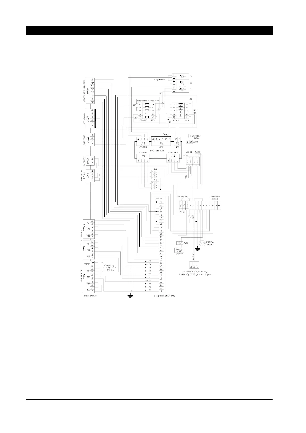
13.9. EVRC2A Wiring Diagram – VD Type
Figure 13-8. EVRC2A Wiring Diagram - VD Type
y Wiring diagram of EVRC2A standard.
y CN1 has different system wirings depending on User system. In “Figure 13-8. EVRC2A
Wiring Diagram - VD Type”, CN1 is marked as Earthing System. For non-Earthing system,
refer to “Figure 13-11. Current Inputs Wiring Diagram”
y CN2 is Voltage Input Connector. “Figure 13-8. EVRC2A Wiring Diagram - VD Type” is
VD(CVD(Capacitor Voltage Divider) or RVD(Resistance Voltage Divider)) type and
“Figure 13-9. EVRC2A Wiring Diagram - VT Type” is VT type.
y VT type is standard and VD type is for optional. VD type and VT type are not exchangeable.

Table of Contents