EasyManua.ls Logo

Fuji Electric FRENIC MEGA G2 Series - 5 ] Position Control

Fuji Electric FRENIC MEGA G2 Series
970 pages
To Next Page IconTo Next Page
To Next Page IconTo Next Page
To Previous Page IconTo Previous Page
To Previous Page IconTo Previous Page
Loading...
5.3 Description of Function Codes 5.3.9 d codes (Applied functions 2)
5-350
[ 5 ] Position control
d201 to d299
Position control
Position control can be performed using a feedback signal with PG. Feedback signal pulses are counted at the
inverter, and operation is performed so that the amount of travel is based on the specified position data. Application
is possible under vector control with speed sensor or under V/f control with speed sensor. If performing position
control using a synchronous motor, use an encoder with A-phase, B-phase, Z-phase, and U-phase, V-phase, W-
phase output for the magnetic pole position sensor. With encoders with only an A-phase, B-phase, and Z-phase, it
is not possible to perform position control with a synchronous motor.
An orientation function has also been prepared as a position control response function.
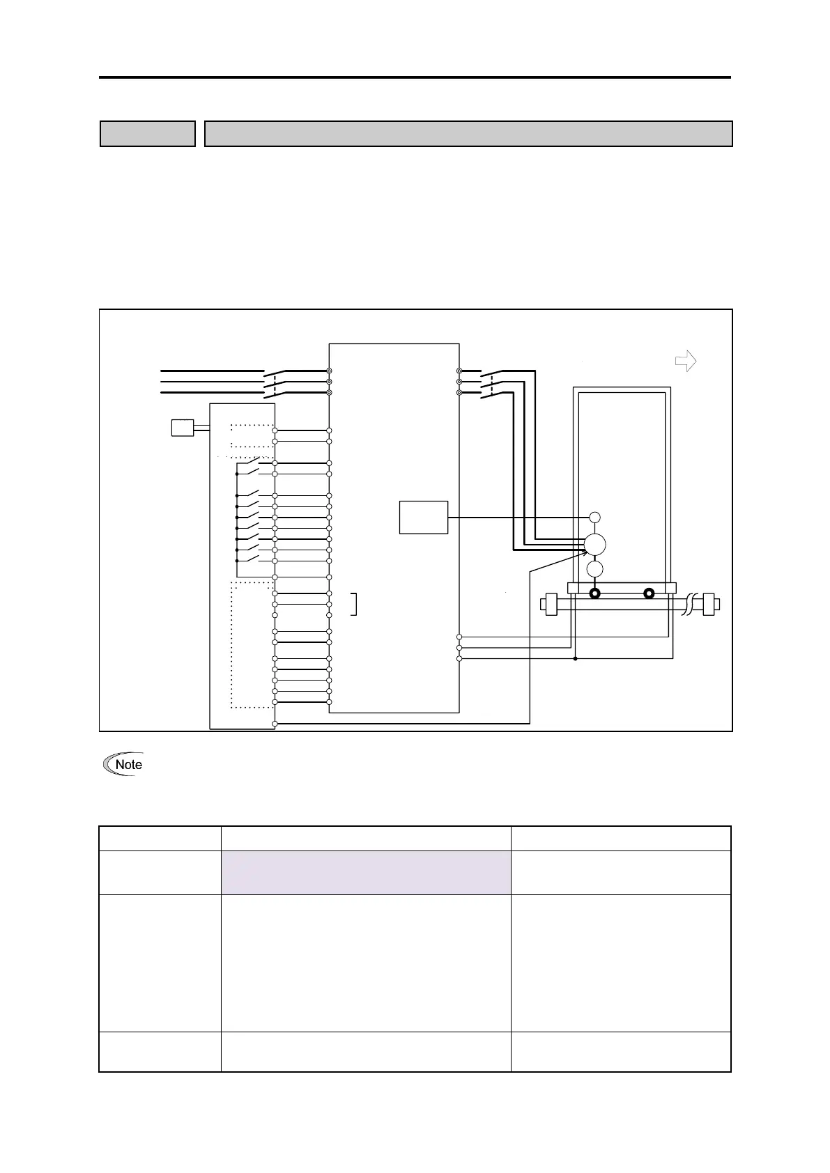
The system configuration is shown in the following diagram.
L1/R
L2/S
L3/T
U
V
W
󲷒󱓇󰼗󲝢󰿜
M


DX+
DX-
RS-485 󲎜
OPC-PG
󱝝
PG󰲉
󰤺󲎇󱾇󱧉
OT-(LS) OT+(LS)
30C
30B
30A
󰡴

X8 (+OT)
X9 (-OT)
CM
FWD
REV
CM
X1 (POS/Hz)
󲎜

X2 (POS-SET)
X3 (POS-SEL1)
X4 (POS-SEL2)
X5 (POS-SEL3)
X6 (BX)
X7 (TEACH)

CMY
Y1
Y2
Y3
Y4
Y5C
Y5A


󰉆󲐫
󲝢󰿜
FRENIC-MEGA
󰷨󲋠󰪍󲎮󱼽󰨪
PG
U
V
W

󰵖󰰵
󰦐
Do not set direction limit [H08] to 1 or 2 when performing position control. Position control will not function
normally.
The control specifications are shown in the following table.
Item
Specification
Remarks
Speed control
range
Vector control with speed sensor: 1:1500
V/f control with speed sensor: 1:200
PG: 1024P/R direct connection
Position control
accuracy
• Motor shaft direct connection:
±1 pulse
• Machine shaft (vector control):
±3 pulses
• Machine shaft (dynamic torque vector control
with speed sensor):
±5 pulses
PG: when 1024P/R used
Control accuracy when multiplying
by 4
Reduction ratio: 1 (excl. gear
backlash)
Position data
range
-99,999,999 to 99,999,999 (user value)
The user value is based on the
electronic gear setting.
Three-phase
AC power supply
Movement direction during
motor forward rotation
Conveyor
Option
External
power
supply
Host
controller
RS-485 communication port
Communication
OPC-PG,
etc.
PG
detection signal
Motor
machine brake
operation signal
Integrated alarm
output
Digital
input
Digital output
Gear

Table of Contents

Related product manuals