EasyManua.ls Logo

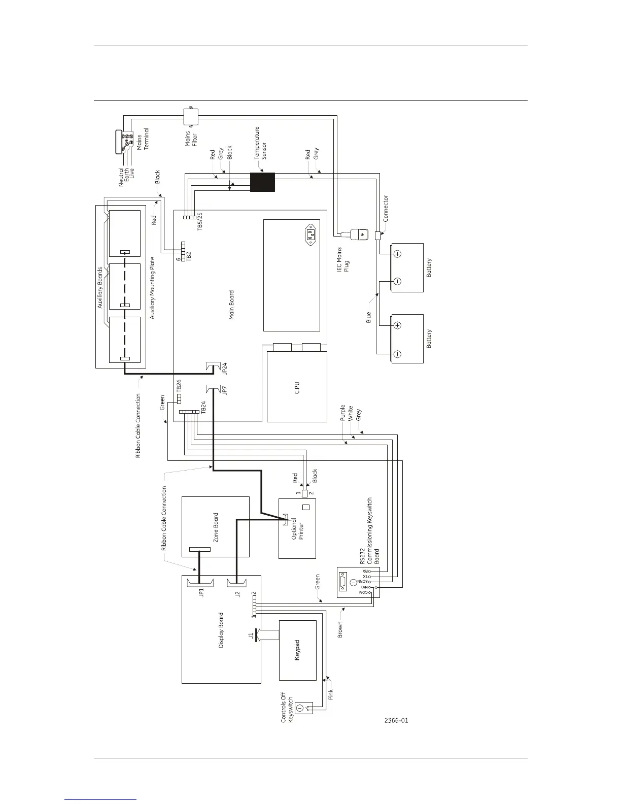
GE Security ZP3 - Internal Wiring; Figure 8: ZP3 Fire Control Panel - Internal Wiring

GE Security ZP3
144 pages
Print Icon
To Next Page IconTo Next Page
To Next Page IconTo Next Page
To Previous Page IconTo Previous Page
To Previous Page IconTo Previous Page
Loading...
ZP3 Fire Control Panel Installation, Commissioning and Maintenance Manual
Page 14 REV 11 (ISS 08/03/2010)
Internal wiring
Figure 8: ZP3 Fire control panel – internal wiring

Table of Contents

Related product manuals