EasyManua.ls Logo

GE Security ZP3 - Auxiliary Boards; ZP3 AB-RL8 Relay Board; Figure 47: ZP3 AB-RL8 Relay Board

GE Security ZP3
144 pages
Print Icon
To Next Page IconTo Next Page
To Next Page IconTo Next Page
To Previous Page IconTo Previous Page
To Previous Page IconTo Previous Page
Loading...
ZP3 Fire Control Panel Installation, Commissioning and Maintenance Manual
REV 11 (ISS 08/03/2010) Page 57
Auxiliary boards
ZP3AB-RL8 Relay board
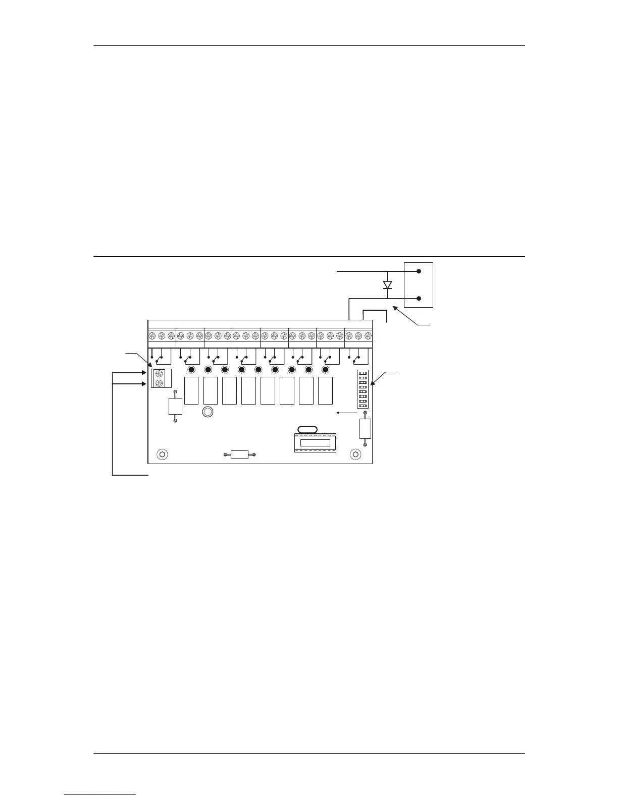
See Figure 47. The ZP3AB-RL8 Relay Board is a programmable relay board with 8 separate relays.
Each relay has a single changeover contact which changes state when activated. Relays are
each allocated an address, and programmed to operate from selected inputs using the I/O-
mapping function built into the panel.
The ZP3AB-RL8 board connects to the ZP3 panel control bus. If allocated to the User Bus section,
up to 768 addresses are available. These outputs are freely programmable. If allocated to the
System Bus section, a further 256 addresses are available, which have pre-programmed
functions.
Figure 47: ZP3AB-RL8 Relay board
ON
12345 768
RELAY 1 RELAY 2 RELAY 3 RELAY 4 RELAY 5 RELAY 6 RELAY 7 RELAY 8
0V
24V
ON
Board
Address
Switch
(see * below)
Device
Being
Switched
Power In
24 VDC supply (22-29 VDC)
1. Supplied from ZP3 panel auxiliary output supply.
OR
2. Supplied from separate 24 VDC power supply unit.
See note below
(-)
(+)
Protected
Flyback Diode,
1N5819
(see ** below)
3010-02
* Each board is fitted with an eight-way Dipswitch. This switch is set to an address between
000 and 127. This board address determines the address of each output, and is specified
under System address list on page 84.
** If outputs are used to switch inductive loads, they should be protected with a flyback
diode.
Note: If externally supplied, do not common the power supplies, i.e. do not connect the 0V of the internal and
external power supplies together.

Table of Contents

Related product manuals