EasyManua.ls Logo

GE Security ZP3 - ZP3 AB-SCB-D Serial Control Bus Driver Board; Figure 17: ZP3 AB-SCB-D Serial Control Bus Driver Board

GE Security ZP3
144 pages
Print Icon
To Next Page IconTo Next Page
To Next Page IconTo Next Page
To Previous Page IconTo Previous Page
To Previous Page IconTo Previous Page
Loading...
ZP3 Fire Control Panel Installation, Commissioning and Maintenance Manual
Page 22 REV 11 (ISS 08/03/2010)
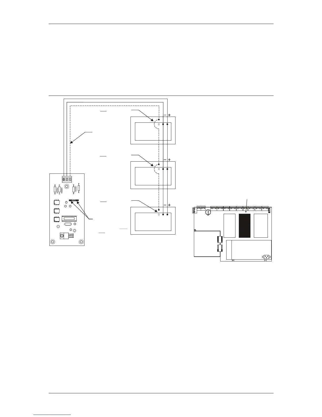
ZP3AB-SCB-D Serial control bus driver board
This board is used to connect a number of Remote Display Units (RDUs) and Remote Control Units
(RCUs) to a ZP3 fire panel. The hardware protocol is a multi-drop RS485 screened two-wire
connection. The wiring is connected from the ZP3AB-SCB-D board in the ZP3 panel to the SCB
connections in the RDU and RCU panels. The wiring must be terminated at the ZP3 panel by
connecting the jumpers as shown in Figure 17. All other panels must not be terminated, i.e. their
jumpers must be removed.
Figure 17: ZP3AB-SCB-D Serial control bus driver board
Screen
RS485 line terminations
(terminate as shown
on the ZP3 panel .
Do terminate on
RDU or RCU units)
ONLY
NOT
Remote Display Units (RDUs)
Remote Control Units (RCUs)
ZP3AB-SCB 1
Serial Control Bus
Driver Board
SCB
3534-02
32
2
1
Do connect screen
to RDU terminal
NOT
Do connect screen
to RDU terminal
NOT
Do connect screen
to RDU terminal
NOT
Note: The RDU screen must ONLY be connected on the ZP3AB-SCB1 Serial Control Bus Driver Board in the ZPR
Panel. The screen must NOT be connected at the RDU.
RS485 operates through up to 2000 metres of screened twisted-pair cable. Wiring can be daisy-
chained point-to-point, or can be teed-off or spurred. The total length of cable in the network
should not exceed 2000 metres. If the network distances are greater than 2000 metres, use
RS485 booster units, or fibre-optic cable. For more information refer to the ZP3AB-SCB-D Serial
Display Unit Interface Installation Sheet, document number 501-0482ZE-1-01.
The cable is specified in detail in the Ziton Wiring Guide, but as a guideline it should be data
quality cable with a conductor size of 0.5 mm
2
.

Table of Contents

Related product manuals