EasyManua.ls Logo

GE Security ZP3 - Common Outputs; Common Sounder Outputs; Figure 44: Common Sounder Outputs Wiring

GE Security ZP3
144 pages
Print Icon
To Next Page IconTo Next Page
To Next Page IconTo Next Page
To Previous Page IconTo Previous Page
To Previous Page IconTo Previous Page
Loading...
ZP3 Fire Control Panel Installation, Commissioning and Maintenance Manual
Page 54 REV 11 (ISS 08/03/2010)
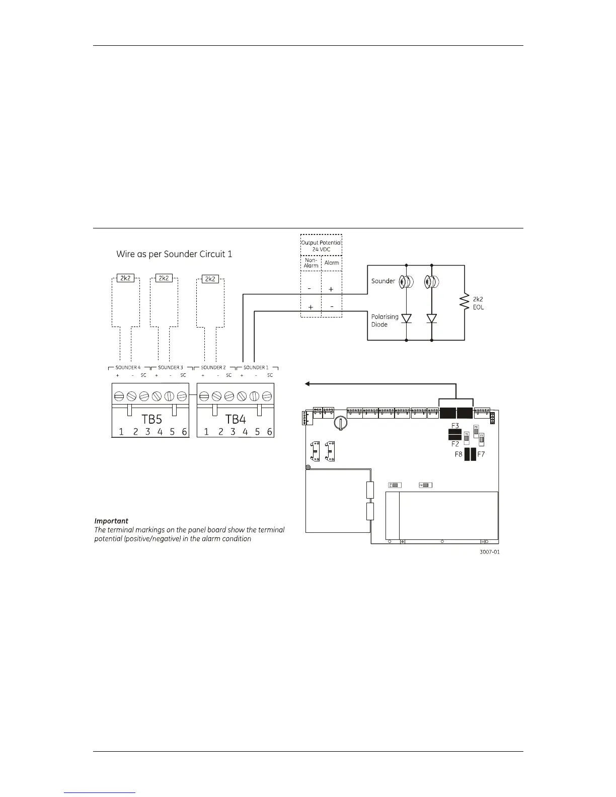
Common outputs
Common sounder outputs
See Figure 44. The ZP3 Fire Control Panel has 4 built-in sounder outputs, arranged in 2-pairs.
These outputs provide 24 VDC for driving sounders. They can be programmed to activate on a fire
alarm from any zone or device, or as required.
The outputs are wired in 2-wire class-B single direction format. They must be daisy-chained from
point-to-point, without tee-offs or spurs. They operate on a reverse polarity basis, and are
monitored for open-circuit and short-circuit. Circuits must be terminated with a 2200-ohm, 1 W
"end-of-line" resistor at the last sounder on the circuit.
Figure 44: Common sounder outputs wiring
Sounders connected to the circuits must be polarized, i.e. fitted with diodes so that they operate
with power in one polarity direction, and not in the reverse direction.
The sounder lines are fused at 1 A each, and sounders 1, 2, 3, 4 are fused by F8, F7, F3, F2
respectively.

Table of Contents

Related product manuals