EasyManua.ls Logo

GE Security ZP3 - Figure 40: Powering Optional Accessory Boards from a Separate External Power Supply; Figure 41: Monitoring External Power; Monitoring External Power

GE Security ZP3
144 pages
Print Icon
To Next Page IconTo Next Page
To Next Page IconTo Next Page
To Previous Page IconTo Previous Page
To Previous Page IconTo Previous Page
Loading...
ZP3 Fire Control Panel Installation, Commissioning and Maintenance Manual
Page 48 REV 11 (ISS 08/03/2010)
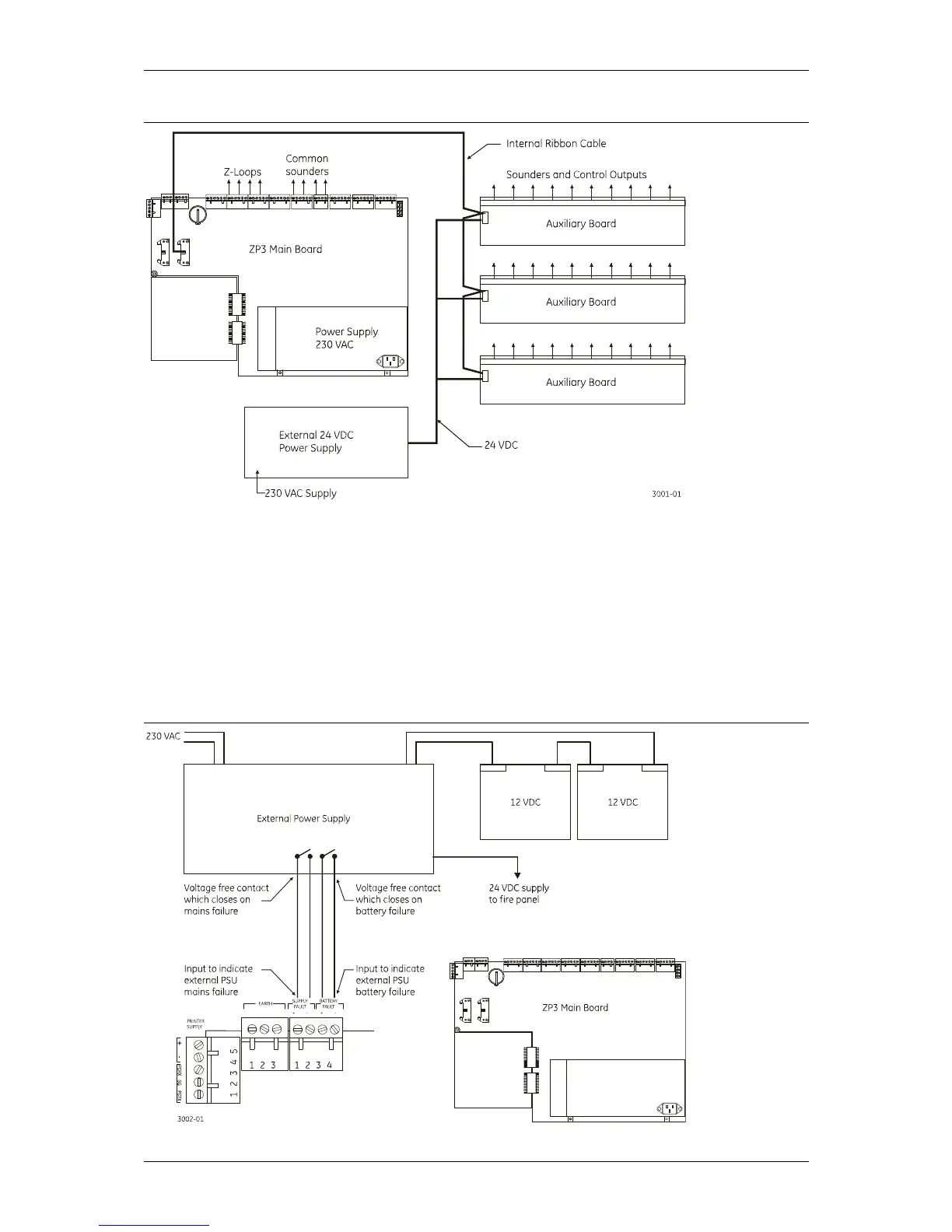
Figure 40: Powering optional accessory boards from a separate external power supply
Monitoring external power
When using an external power supply unit, the failure of the mains supply, or the failure of the
batteries, charging system, or fuse, can be reported to the ZP3 fire panel, as shown below. The
power supply unit must incorporate two sets of voltage-free contacts, one which changes-over
on mains failure, the other which changes-over on battery fault (disconnected battery, low or
high voltage, etc), charger failure, or fuse failure. These contacts must be connected to the ZP3
main board terminals as shown in Figure 41. When the contact changes state, the fault is
reported to the ZP3 panel, which indicates the appropriate visual and audible alarm, as well as
signalling to the Remote Manned Centre.
Figure 41: Monitoring external power

Table of Contents

Related product manuals