EasyManua.ls Logo

GE Security ZP3 - Remote Manned Centre Outputs; Figure 46: Remote Manned Centre Outputs

GE Security ZP3
144 pages
Print Icon
To Next Page IconTo Next Page
To Next Page IconTo Next Page
To Previous Page IconTo Previous Page
To Previous Page IconTo Previous Page
Loading...
ZP3 Fire Control Panel Installation, Commissioning and Maintenance Manual
Page 56 REV 11 (ISS 08/03/2010)
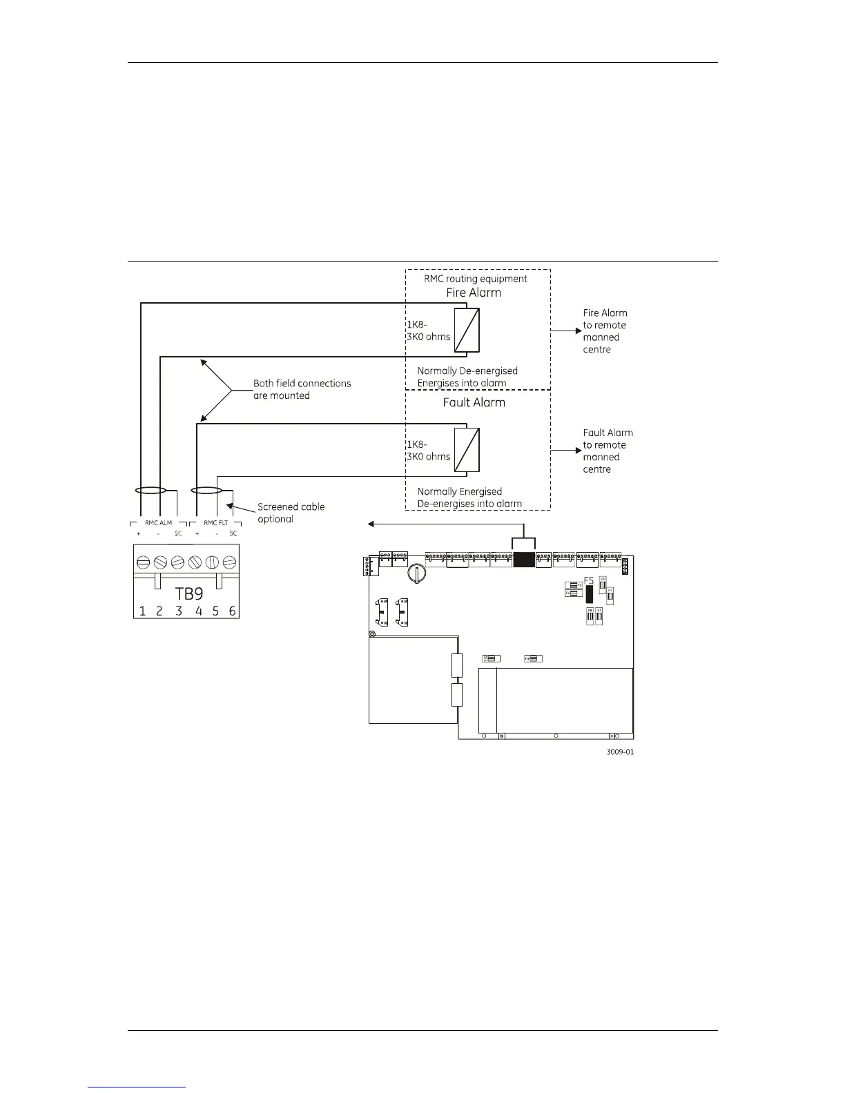
Remote manned centre outputs
See Figure 46. The remote manned centre (RMC) alarm output sends a fire alarm signal to RMC-
routing equipment upon receipt of any fire alarm. This transmits an alarm to a remote manned
centre such as a fire brigade or a manned control room.
The remote manned centre (RMC) fault output sends a fault alarm signal to RMC-routing
equipment upon occurrence of any panel or system fault. This transmits a fault signal to a remote
manned centre such as a fire brigade, or a manned control room.
Figure 46: Remote manned centre outputs
The RMC outputs are designed to drive relays in the fire alarm routing equipment. These relays
must have a coil resistance of 1K8 ohms - 3K0 ohms (1800-3000 ohms).
The Fire Alarm circuit is monitored for open and short circuit conditions, at the fire panel. A fire
alarm causes the current to increase and activate the routing equipment.
The Fault Alarm is monitored for open and short circuit conditions at the receiving equipment
end. The fault alarm output is normally ON, and de-energises upon receipt of a fault signal.
If these outputs are not used they should be terminated with a resistor of 2K2 ohms (2200 ohms).

Table of Contents

Related product manuals