EasyManua.ls Logo

Honeywell AUTOMATIC CONTROL SI Edition - Specifying Graphics (I;O Summaries)

Honeywell AUTOMATIC CONTROL SI Edition
512 pages
Print Icon
To Next Page IconTo Next Page
To Next Page IconTo Next Page
To Previous Page IconTo Previous Page
To Previous Page IconTo Previous Page
Loading...
BUILDING MANAGEMENT SYSTEM FUNDAMENTALS
ENGINEERING MANUAL OF AUTOMATIC CONTROL
193
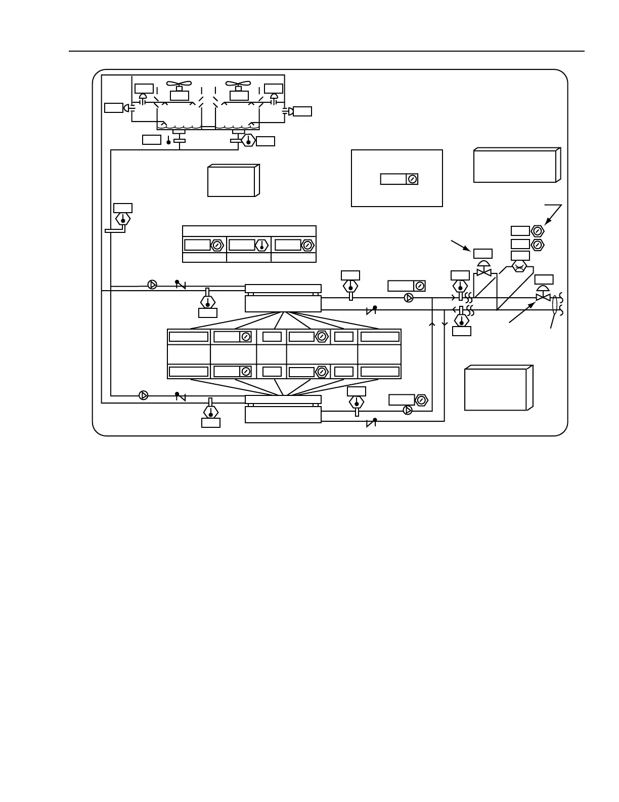
Fig. 7. Graphic Sketch for Sequence of Operation.
SPECIFYING GRAPHICS (I/O SUMMARIES)
When writing the control sequence of operation, sketch the
graphic (Fig. 7) and note the necessary inputs and outputs
required for control. Develop an Input/Output (I/O) Summary
(Fig. 8) where, the X-axis lists generic types of points and the
Y-axis lists the specific points. Publishing the graphic sketch
with all hardware and software points and symbols is an
excellent alternative to the I/O summary.
0
0
100
33
33
100
33
7
00
13.0
26
7.3
13
30
ON
OFF
100
100
78 NORMALENABLED
ENABLED
BY REMOTE
CONTROLS
OPERATING
MODE
ALARM
STATUS
MAX
CURRENT
STATUS
NORMAL00
AUTO
MINIMUM
CHILLED WATER SETPOINT
MAXIMUMACTUAL
AUTO
1
AUTO
AUTO
7 8 11
100
PRESSURE
CHOKE
VALVE
CHILLER
CONTROL
SETPOINTS/
SEQUENCES
365
TO
AHUs
kPa
PRESSURE
BYPASS
VALVE
DUAL CHILLER
SETPOINT
REDUCTION
LEAD CHILLER
SELECTOR
PRESSURE BYPASS
& CHOKE VALVE
CONTROL
1 = CHILLER 1 LEADS
2 = CHILLER 2 LEADS
COOLING
TOWER
CONTROL
26
DUAL CHILLER PLANT
CONTROL
GRAPHIC DISPLAY
M15136
CHILLER 1
CHILLER 2
%
LOAD
365
26
72.4

Table of Contents

Related product manuals