EasyManua.ls Logo

IAI SCON-CA - Motor • Encoder Circuit

IAI SCON-CA
370 pages
Print Icon
To Next Page IconTo Next Page
To Next Page IconTo Next Page
To Previous Page IconTo Previous Page
To Previous Page IconTo Previous Page
Loading...
Chapter 2 Wiring
72
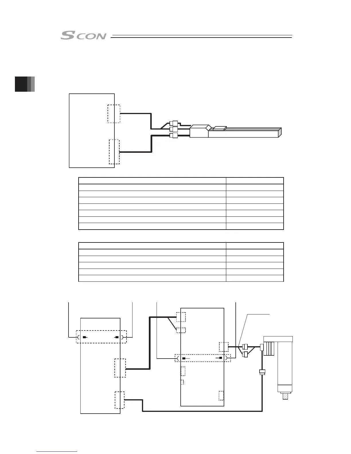
[4] Motor • Encoder Circuit
1) Connection of Short-Axis Robot (excluding RCS2-RA13R equipped with brake/loadcell and
NS Series equipped with brake)
Note 1 Applicable Encoder Cable types □□□ : cable length Example) 030 = 3m
Actuator Type Cable
For Single Axis Robot Connection CB-X1-PA□□□
For connection of Short-Axis Robot with LS type CB-X1-PLA□□□
For ISWA Connection CB-X1-PA□□□-WC
For connection of NS/Linear Servo/RCS2 CB-X3-PA□□□
For connection of NS/Linear Servo/RCS2 equipped with LS CB-X2-PLA□□□
For RCS2 CB-RCS2-PA□□□
For RCS2-RT/RA13R CB-RCS2-PLA□□□
Note 2 Applicable Motor Cable types □□□ : cable length Example) 030 = 3m
Actuator Type Cable
For Linear (except for Large Type) CB-X-MA□□□
For Large Type Linear CB-XMC-MA□□□
For Single Axis Robot Connection CB-RCC-MA□□□
For Single Axis Robot Connection (robot cable) CB-RCC-MA□□□-RB
For ISWA CB-XEU-MA□□□
2) Connection of RCS2-RA13R actuator equipped with brake or NS-type equipped with brake
SCON
PG
MOT
Brake Box
(RCB-110-RA13)
24VIN 0V
CB-RCS2
-PLA□□□
CONTROLLER1
Encoder Input
Connector
Limit Switch
Connector
Limit Switch
Connector
ACTUATOR1
Encoder Output
Connector
24V DC 0V
• NS Type
• RCS2-RA13R
[Example]
RCS2-RA13R
BK+
24V DC 0V
CB-RCC-MA□□□
CB-RCS2
-PLA□□□
PWR-
Brake Power
Supply Connector
CONTROLLER2
Encoder Input
Connector
ACTUATOR2
Encoder
Connector
Encoder
Connector
Motor
Connector
(Equipped with brake)
SCON
PG
MOT
Encoder Cable
Note 1
Motor Cable
Note 2
Encoder
Connector
Motor
Connector

Table of Contents

Other manuals for IAI SCON-CA

Related product manuals