EasyManua.ls Logo

Lenovo ThinkSystem SR635 - Page 60

Lenovo ThinkSystem SR635
246 pages
Print Icon
To Next Page IconTo Next Page
To Next Page IconTo Next Page
To Previous Page IconTo Previous Page
To Previous Page IconTo Previous Page
Loading...
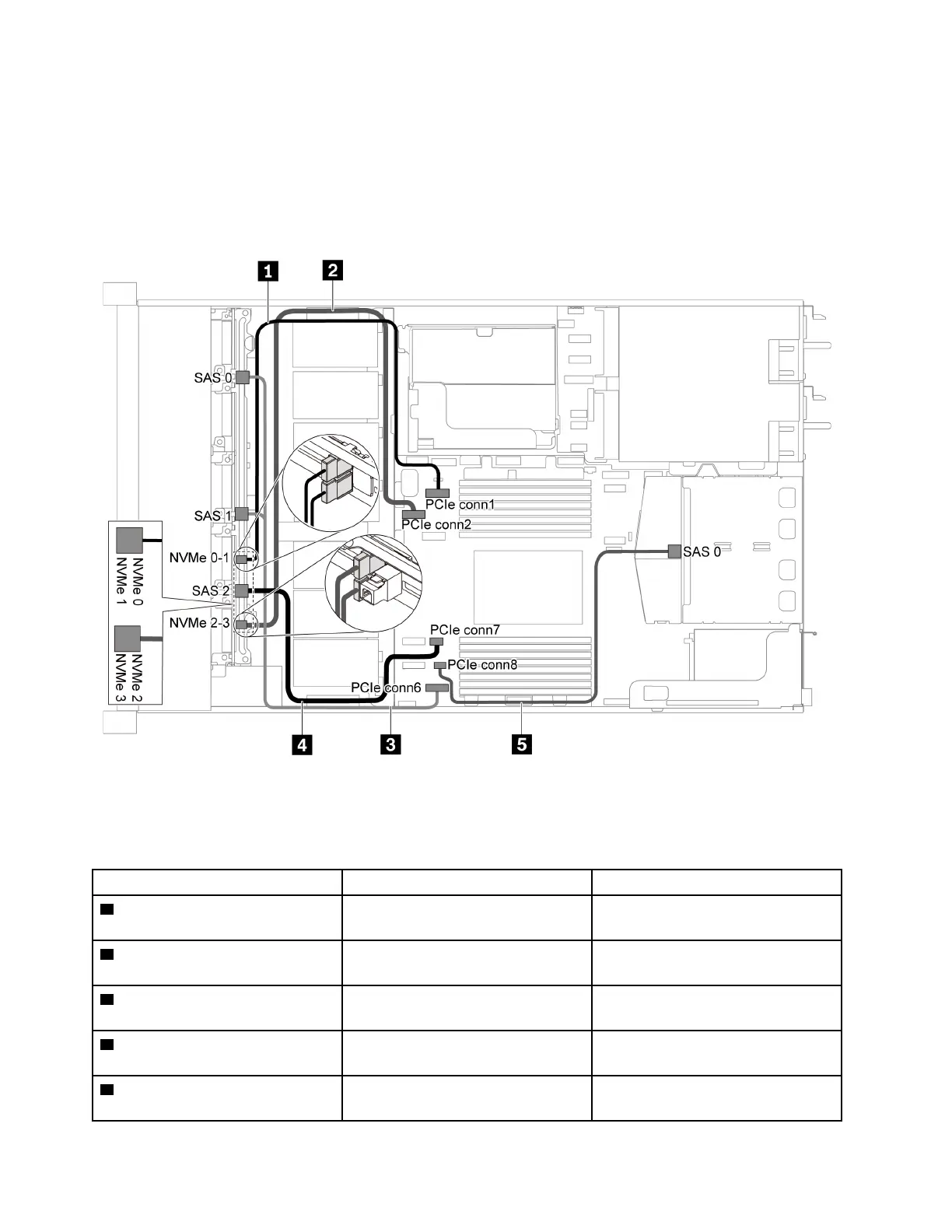
Six 2.5-inch SATA drives, four 2.5-inch NVMe drives and rear SAS/SATA drive assembly
Notes:
When the SAS/SATA backplanes are connected to PCIe connectors on the system board, only SATA
drives are supported. No SAS drives are supported.
The cable routing illustration is based on the scenario that the rear hot-swap drive cage is installed.
Depending on the model, the rear hot-swap drive cage might not be available on your server.
Figure 41. Cable routing for server model with six 2.5-inch SATA drives, four 2.5-inch NVMe drives and rear SAS/SATA
drive assembly
Note: M.2 drive is not supported for this configuration.
Cable From To
1 NVMe signal cable for front
backplane
NVMe 0 and NVMe 1 connectors on
the front backplane
PCIe connector 1 on the system
board
2 NVMe signal cable for front
backplane
NVMe 2 and NVMe 3 connectors on
the front backplane
PCIe connector 2 on the system
board
3 SAS signal cable for front
backplane
SAS 0 and SAS1 connectors on the
front backplane
PCIe connector 6 on the system
board
4 SAS signal cable for front
backplane
SAS 2 connector on the front
backplane
PCIe connector 7 on the system
board
5 SAS signal cable for rear
backplane
SAS connector on the rear backplane PCIe connector 8 on the system
board
50 ThinkSystem SR635 Maintenance Manual

Table of Contents

Related product manuals