EasyManua.ls Logo

Lenovo ThinkSystem SR635 - Power;Sideband Cable Routing

Lenovo ThinkSystem SR635
246 pages
Print Icon
To Next Page IconTo Next Page
To Next Page IconTo Next Page
To Previous Page IconTo Previous Page
To Previous Page IconTo Previous Page
Loading...
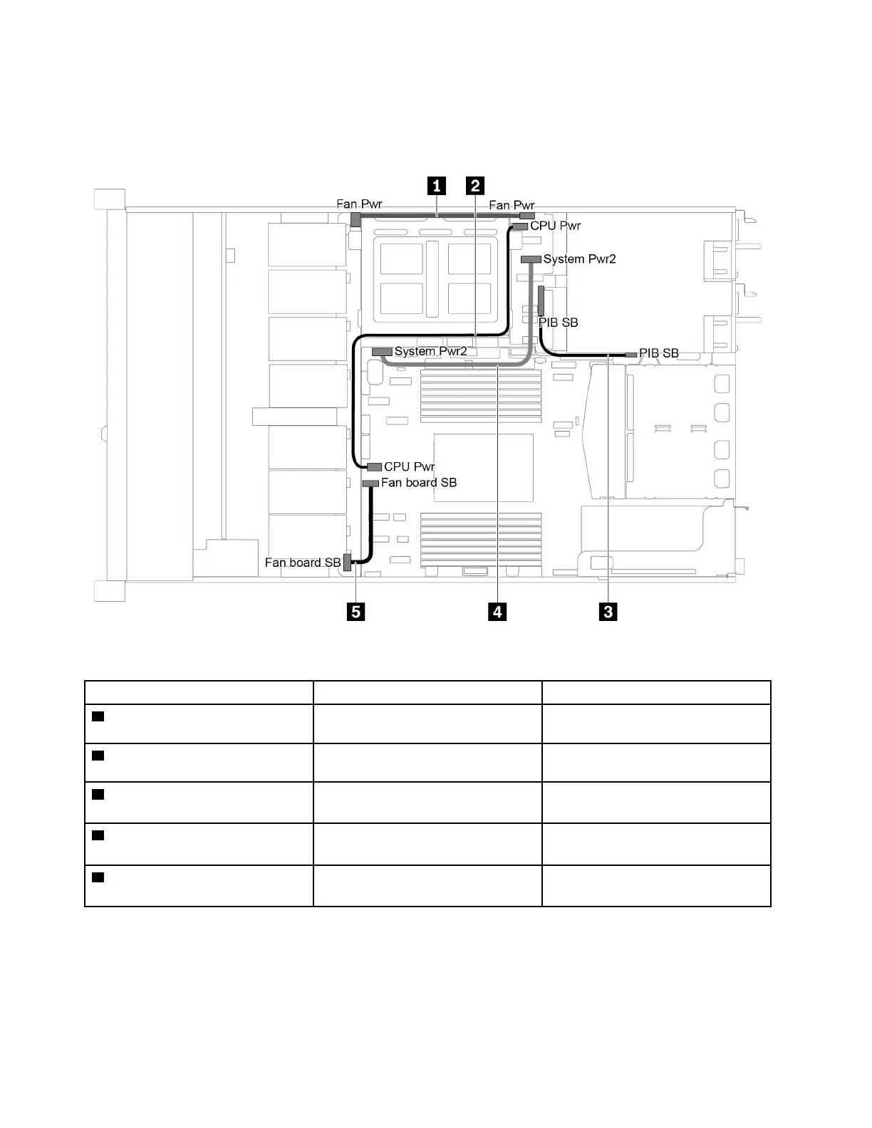
Power/Sideband cable routing
Use the section to understand the power and sideband cable routing for CPU, backplanes, PIB board, fan
board, internal drive assembly, and rear drive cage.
Figure 18. 2.5-inch chaiss-1
Cable
From To
1
Fan board power connector on the
fan board
Fan board power connector on the
PIB board
2
CPU power connector on the PIB
board
CPU power connector on the system
board
3
PIB sideband connector on the PIB
board
PIB sideband connector on the
system board
4
System power connector 2 on the
PIB board
System power connector 2 on the
system board
5
Sideband connector on the fan board
Fan sideband connector on the
system board
28 ThinkSystem SR635 Maintenance Manual

Table of Contents

Related product manuals