EasyManua.ls Logo

Lenze 8400 motec - Ethernet;Ip&#X99

Lenze 8400 motec
172 pages
To Next Page IconTo Next Page
To Next Page IconTo Next Page
To Previous Page IconTo Previous Page
To Previous Page IconTo Previous Page
Loading...
Installation
Control terminals
EtherNet/IP
5
l
109
EDS84DG752 EN 7.0
5.9.10 EtherNet/IP
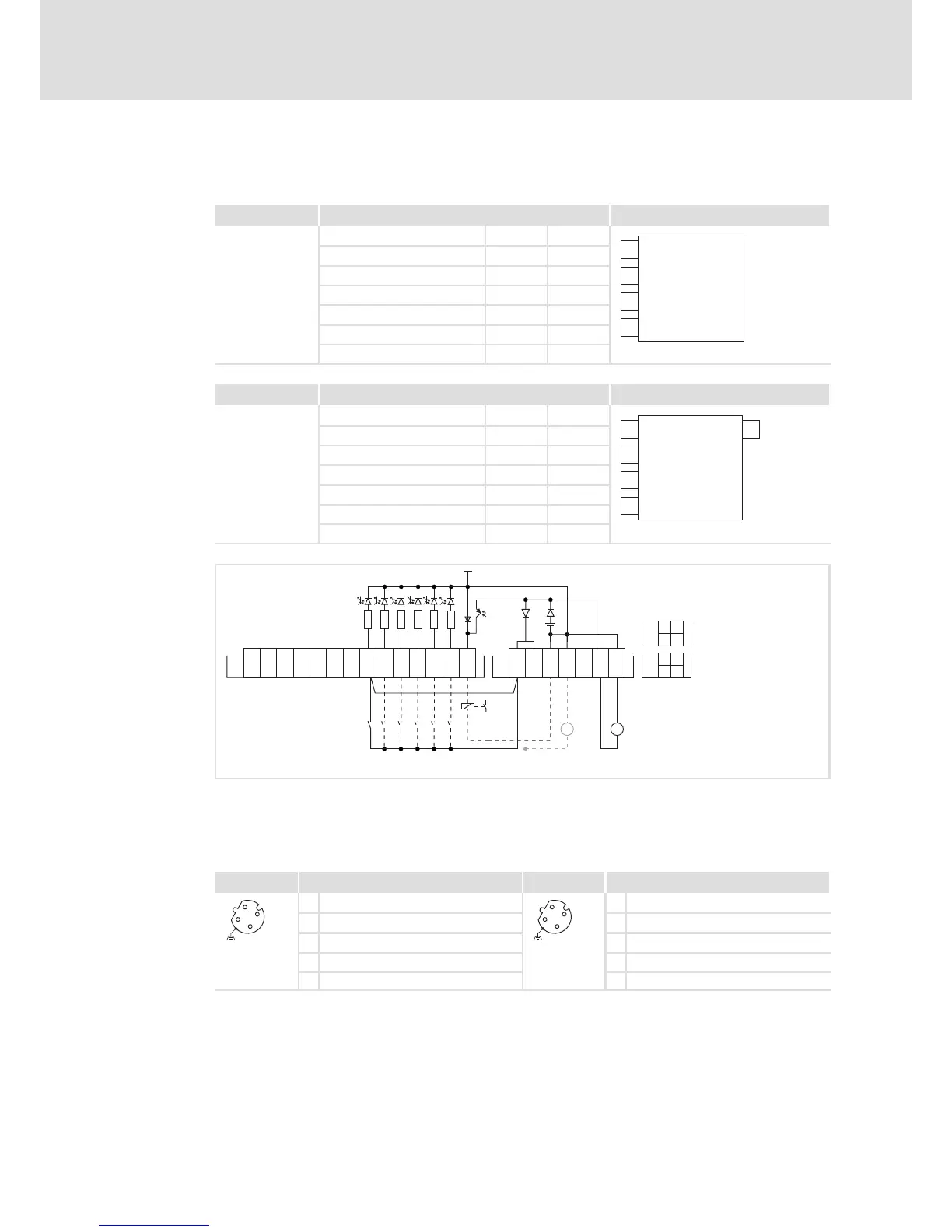
Terminals
Mode Features Position of M12 plug
EtherNet/IP
E84DGFCGFNP
Controller enable RFR 1
A1
A2
A3
A4
LED
Bus
DI1/DI2
Bus
B4
B3
B2
B1
Digital inputs DIx 5
Digital outputs DOx 1
Analog inputs AU/AI ˘
Relay NO ˘
STO safety function STO ˘
External 24 V supply 24E 1
E84DG126f
Mode Features Position of M12 plug
EtherNet/IP
Enhanced
E84DGFCGENP
Controller enable RFR 1
A1
A2
A3
A4
LED B4
B3
B2
B1
Bus
DI1/DI2
Bus
DI3/DO1
Digital inputs DIx 5
Digital outputs DOx 1
Analog inputs AU/AI ˘
Relay NO ˘
STO safety function STO ˘
External 24 V supply 24E 1
E84DG126j
S1
24 V
ext.
+
-
24 V
ext.
-
24 V
ext.
-
+
1)
3.3k
3.3k
3.3k
3.3k
3.3k
3.3k
24 V int.
100 mA
DI1
DI2
DI3
DI4
DI5
DO1
RFR
X4
n. c.
n. c.
n. c.
n. c.
n. c.
n. c.
n. c.
24O
24O
GND
GND
X3
24E
GND
n. c.
X31
X32
E84DG015f
1)
External alternative voltage supply
2)
Wire jumper for permanent controller enable (delivery state)
Assignment of M12 plug
A2 Assignment A3 Assignment
4
1
2
3
1 TX+
4
1
2
3
1 TX+
2 Rx+ 2 Rx+
3 Tx − 3 Tx −
M12 female
socket D−coding
4 RX−
M12 female
socket D−coding
4 RX−
5 Contact plate 5 Contact plate

Table of Contents

Other manuals for Lenze 8400 motec

Related product manuals