EasyManua.ls Logo

Rockwell Automation Allen-Bradley IMPACT 1336 Series

Rockwell Automation Allen-Bradley IMPACT 1336 Series
196 pages
To Next Page IconTo Next Page
To Next Page IconTo Next Page
To Previous Page IconTo Previous Page
To Previous Page IconTo Previous Page
Loading...
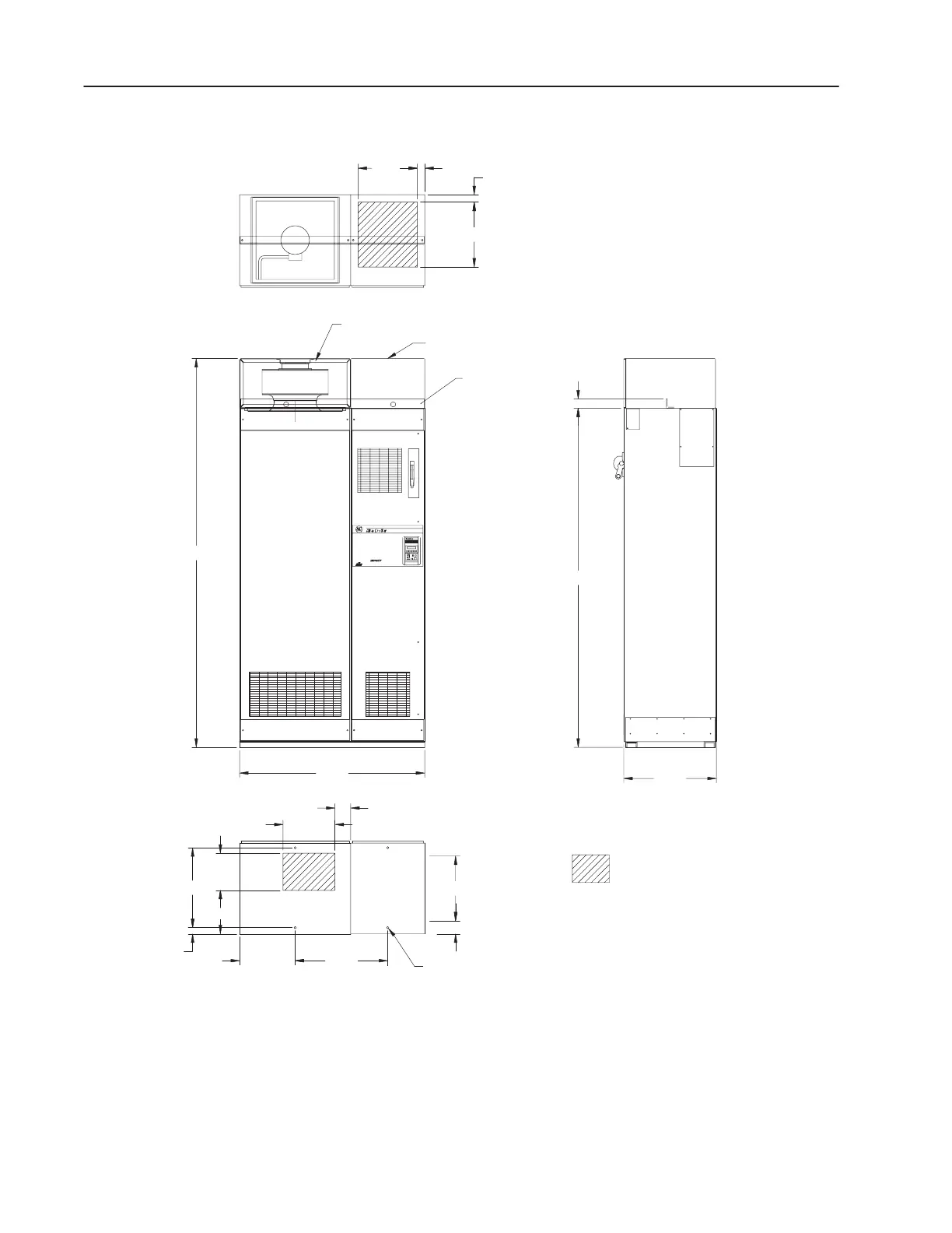
7–10 Schematics
Publication 1336 IMPACT-6.8 – November, 2002
75.0
0
0.625 DIA–4 MTG HOLES
17.50
REMOVABLE
LIFTING ANGLE
15.00
1.69
25.00
DRIVE BAY
11.75
10.00
21.56
4.25
14.00
3.50
17.50
CONTROL BAY
30” 20”
104.88
FAN SHIPPED SEPARATE
TOP HAT
16.00 2.00
25.00
AREA AVAILABLE FOR CONDUIT
91.50
2.50
2.00
Sheet 5 of 7

Table of Contents

Related product manuals