EasyManua.ls Logo

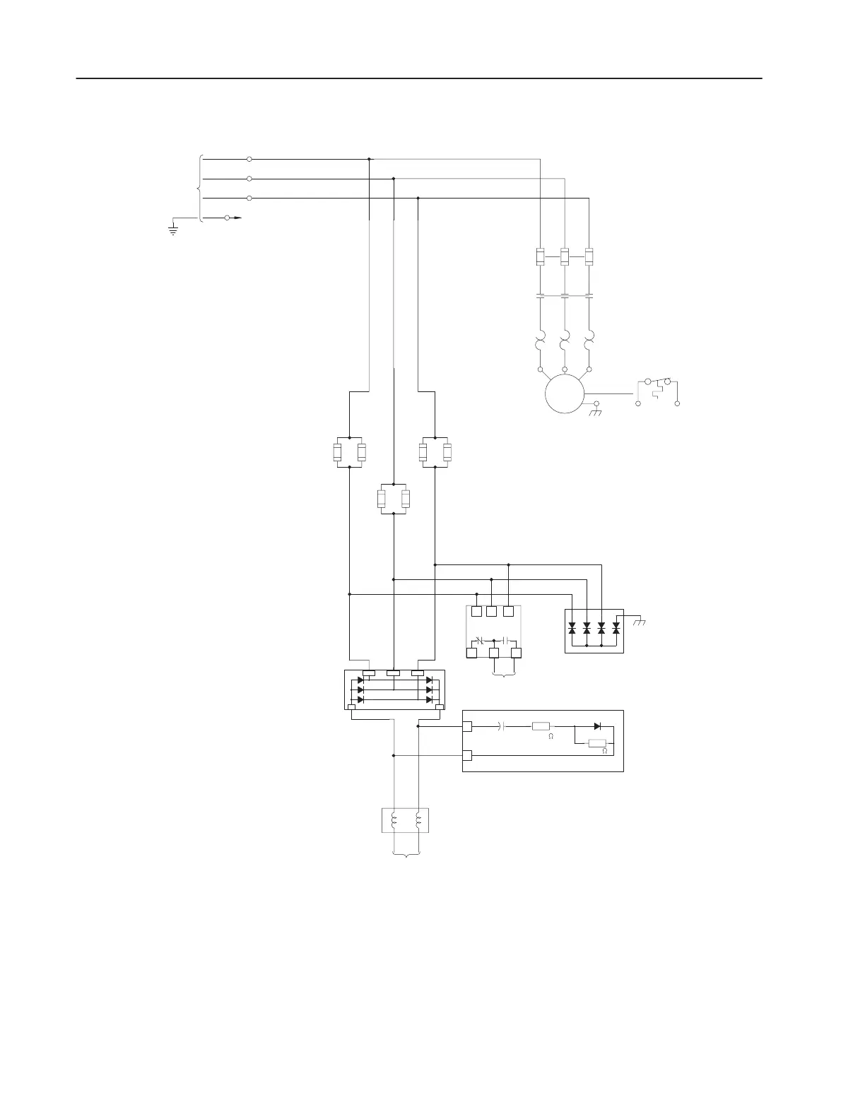
Rockwell Automation Allen-Bradley IMPACT 1336 Series - Typical Converter Bay Schematic

Rockwell Automation Allen-Bradley IMPACT 1336 Series
196 pages
Print Icon
To Next Page IconTo Next Page
To Next Page IconTo Next Page
To Previous Page IconTo Previous Page
To Previous Page IconTo Previous Page
Loading...
7–6 Schematics
Publication 1336 IMPACT-6.8 – November, 2002
D11
R12
EA10
CH10
C11
R11
460 VOLTS
EA11
CCMR
EA12
MOV
1
2
3
TB11
12 3
456
4–28
4–28
13621361
3383 3384
11131111 1112
1201 1202 1203
10311011 1021
10721071 1073
1011
1021
1031
F2AF2
F1AF1
700A
700V
F3AF3
OL12
M12
F21F20
–5
600V
F22
AC1 AC2 AC3
+
12921291
SNUBBER BOARD
+
1 2 3
RELAY
PHASE LOSS
A B C
2–11
TO
2–10
TO
3–38
10MFD
2000V
TO
100W
2.2
100
100W
LINE–
AC LINES
3PH, 60HZ
FAN1
PE
L3
L2
L1
Sheet 1 of 7
Typical Converter Bay
Schematic

Table of Contents

Related product manuals