EasyManua.ls Logo

Rockwell Automation Allen-Bradley IMPACT 1336 Series

Rockwell Automation Allen-Bradley IMPACT 1336 Series
196 pages
To Next Page IconTo Next Page
To Next Page IconTo Next Page
To Previous Page IconTo Previous Page
To Previous Page IconTo Previous Page
Loading...
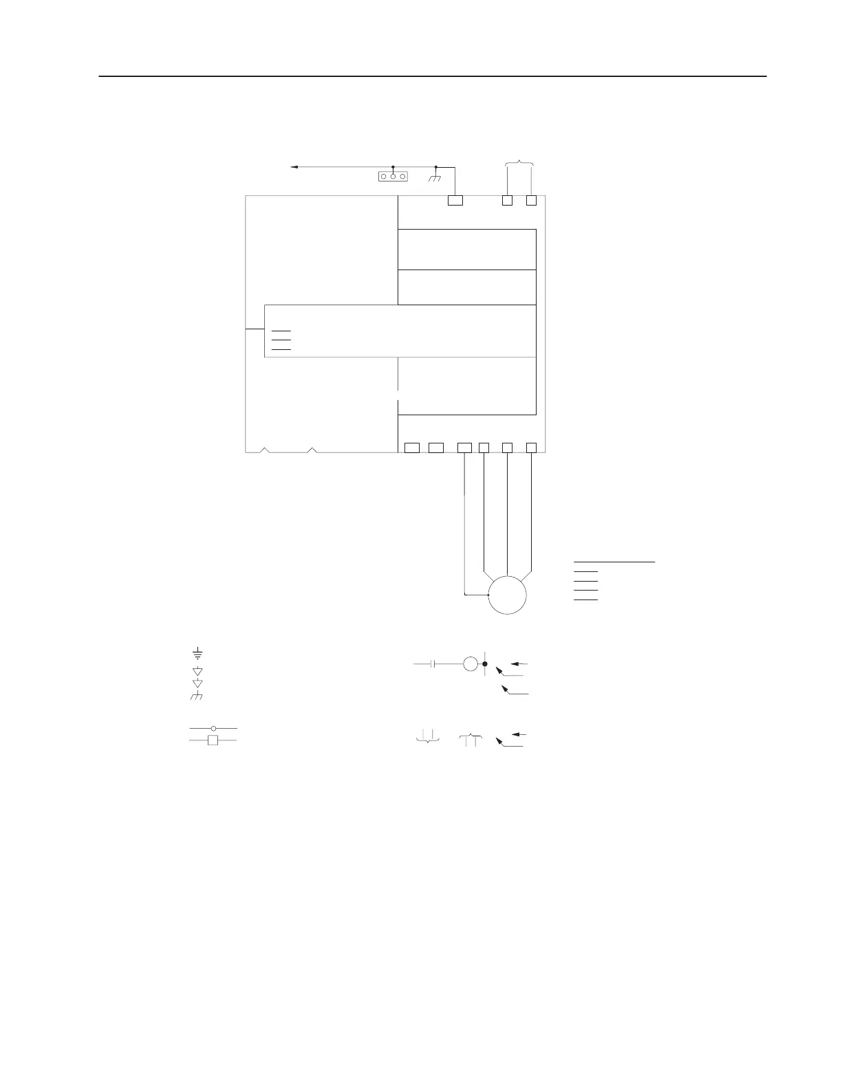
7–7Schematics
Publication 1336 IMPACT-6.8 – November, 2002
983
460
800 C
1–36
1361 1362
CHASSIS
BULLETIN 1336 IMPACT DIGITAL AC DRIVE
FOR FURTHER DRIVE INFORMATION, REFER TO
INSTRUCTION MANUAL PUBLICATION 1336 IMPACT–5.0
2. * –INDICATES COMPONENTS SUPPLIED BY OTHERS.
–INDICATES TERMINAL ON INDIVIDUAL
3.
COMPONENTS.
–INDICATES TB4 TERMINAL BLOCK.
4
GENERAL NOTES:
1.
– SIGNAL COMMON
BY CUSTOMER.
– CHASSIS CONNECTION.
– POWER EQUIPMENT GROUND
– BUILDING GROUND TO BE GROUNDED
PE
TE
1–04
ADAPTER
2
ADAPTER
OPTION PORTS
1
AMPS
. HP T
VOLTS
FROM
–DC+DC PE U V W
AND DESTINATION SYMBOLS INDICATE SHEET AND LINE NUMBERS.
–INDICATES LINE NO. 24.
–INDICATES SHEET NO. 1.
FROM 1–24
TO 1–24
1–24
A NORMALLY CLOSED CONTACT.
–UNDERSCORED TEXT LINE INDICATES
OFF–PAGE CROSS REFERENCING – NUMBERS ADJACENT TO SOURCE
–INDICATES SHEET NO. 1.
–INDICATES LINE NO. 3.
COIL AND UNDER CONTACT INDICATE SHEET AND LINE NUMBERS.
4. COIL AND CONTACT CROSS REFERENCING – NUMBERS ADJACENT TO
1–3
2–18
1–3
TERMINAL BLOCK TB1
TERMINAL BLOCK TB2
(INTERFACE CONTROL BOARD)
FOR DETAILED INFORMATION,
TERMINAL BLOCK TB1
FOR DETAILED INFORMATION,
(INTERFACE BOARD)
TERMINAL BLOCK TB3
REFER TO PAGE 2
REFER TO PAGE 2
BUS
PE +
PE
MOTOR FLA MUST NOT EXCEED DRIVE AMP RATING.
REFER TO MOTOR NAMEPLATE FOR DATA.
(T1)
(G)
(T3)
MOTOR *
AC
(T2)
FLA
RPM (BASE)
VOLTS
MOTOR DATA
HP
ENGLISH/ENGLISH LANGUAGE MODULE
EA1
FROM
Sheet 2 of 7

Table of Contents

Related product manuals