EasyManua.ls Logo

Rockwell Automation Allen-Bradley IMPACT 1336 Series

Rockwell Automation Allen-Bradley IMPACT 1336 Series
196 pages
To Next Page IconTo Next Page
To Next Page IconTo Next Page
To Previous Page IconTo Previous Page
To Previous Page IconTo Previous Page
Loading...
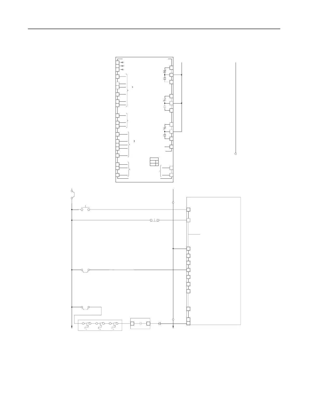
7–8 Schematics
Publication 1336 IMPACT-6.8 – November, 2002
(25)
PB2*
START
(20)
(19)
PB3*
STOP
TAS1 TAS2 TAS3
EA10
M12EA11
23
3–38 3–38
TO 3–01
4–41
3061
TO 3–01
FROM
4–41
4–281–27
3201 4065
3201
3351
3301
3201
3212
4065
3232
4065
3381
3383
3382
3384 3386
PULSE
INPUT
TERMINAL BLOCK TB10
TERMINAL BLOCK TB11
ALARM
SHD
SHD
OUT1+
OUT1–
OUT2+
OUT2–
OUT3+
OUT3–
20
21
22
19
16
17
18
15
OUTPUT
4–20mA
2–3
X1–2
J4
OUTPUT
0– 10V
PLS+
PLS–
13
14
TE
10
9
CONTROL BOARD
FAULT
COMMON
ALARM
FAULT
COMMON
PROGRAMMABLE
COMMON
5
SHD
IN2+
IN2–
SHD
IN3+
SHD
IN3–
12
11
10
8
9
6
7
INPUT
4–20mA
0– 10V
INPUT
IN1+
IN1–
TB10
4
1
2
3
AGND
–10V
+10V
1336E
8
7
6
4
5
RUN 3
2
TB11
1
(8) (18)
INTERLOCK
CUSTOMER
W7
(17)(7)
W6
CUSTOMER
INTERLOCK
FROM
(6)
(5)
W5
FROM FROM
ENABLE30
29
28
COMMON
SPD SEL 1
27
25
26
SPD SEL 2
COMMON
SPD SEL 3
23
24
21
22
JOG
COMMON
REVERSE
TERMINAL BLOCK TB3
INTERFACE BOARD
TB3
20
19
START
115VAC
MOD–L6
NOT STOP, CLEAR FAULT
PRECHARGE ENABLE
Sheet 3 of 7

Table of Contents

Related product manuals