EasyManua.ls Logo

Synrad FH FLYER - Page 201

Synrad FH FLYER
250 pages
Print Icon
To Next Page IconTo Next Page
To Next Page IconTo Next Page
To Previous Page IconTo Previous Page
To Previous Page IconTo Previous Page
Loading...
technical reference
SYNRAD FH Series Flyer Operator’s Manual Version 3.4
171
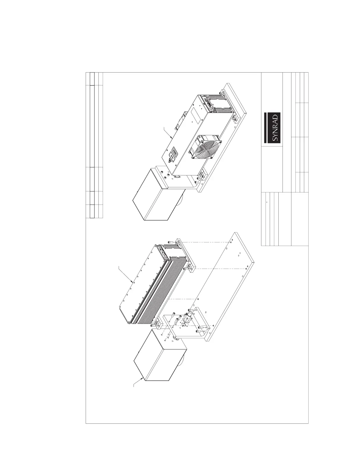
FH Flyer/Firestar t-Series package
outline drawing
.
.
DMDRELEASE TO PRODUCTION
13-Nov-07
3575A
ADD FAN-COOLED VERSION
B
DMD
27-Oct-09
4128
.
..
SEE BOM
RLS
DESCRIPTION:
FINISH:
MATERIAL:
REVECO DATE
BDNOITPIRCSED
Inches
SYNRAD INC. AND SHALL NOT BE
ANGLE = ±
.1
.x = ±
.01
.xx = ±
.005
.xxx = ±
TOLERANCES UNLESS NOTED:
D. DUVALL
1
of
.
PERMISSION OF SYNRAD INC.
PART NUMBER:
DWG/FILE NUMBER:
SHEET
ENG:
DRAWN BY:
DATE:
UNITS:
CATEGORY:
CHECKED BY:
DATE:
SIZE: B
FINISH CLASS:
APPROVED BY:
DATE:
OR IN PART WITHOUT WRITTEN
USED OR DISCLOSED IN WHOLE
2.0
THIS DRAWING IS PROPRIETARY TO
Fax: (425)349-3667
ASSY, FLMK-30, RAIL, V30, FLYER, RoHS
1-Nov-07
230-19674-06
1
.
.
230-19674-06
PROPRIETARY
SYNRAD INC.
4600 Campus Place
Mukilteo, WA 98275
Phone: (425)349-3500
V30 FAN-COOLED LASER
NOTES:
MANUFACTURE IN ACCORDANCE WITH SYNRAD DOCUMENT "WORKMANSHIP STANDARD".1.
MARKING HEAD
V30 OEM LASER

Table of Contents

Related product manuals