EasyManua.ls Logo

Vertiv Liebert STS2/PDU - Figure 12 Seismic Anchor Drawing: 800 - 1000 Amp Liebert STS2

Vertiv Liebert STS2/PDU
144 pages
Print Icon
To Next Page IconTo Next Page
To Next Page IconTo Next Page
To Previous Page IconTo Previous Page
To Previous Page IconTo Previous Page
Loading...
Vertiv | Liebert
®
STS2
100-1000A, 50/60Hz User Manual | Rev. 12 | 11/2017 25
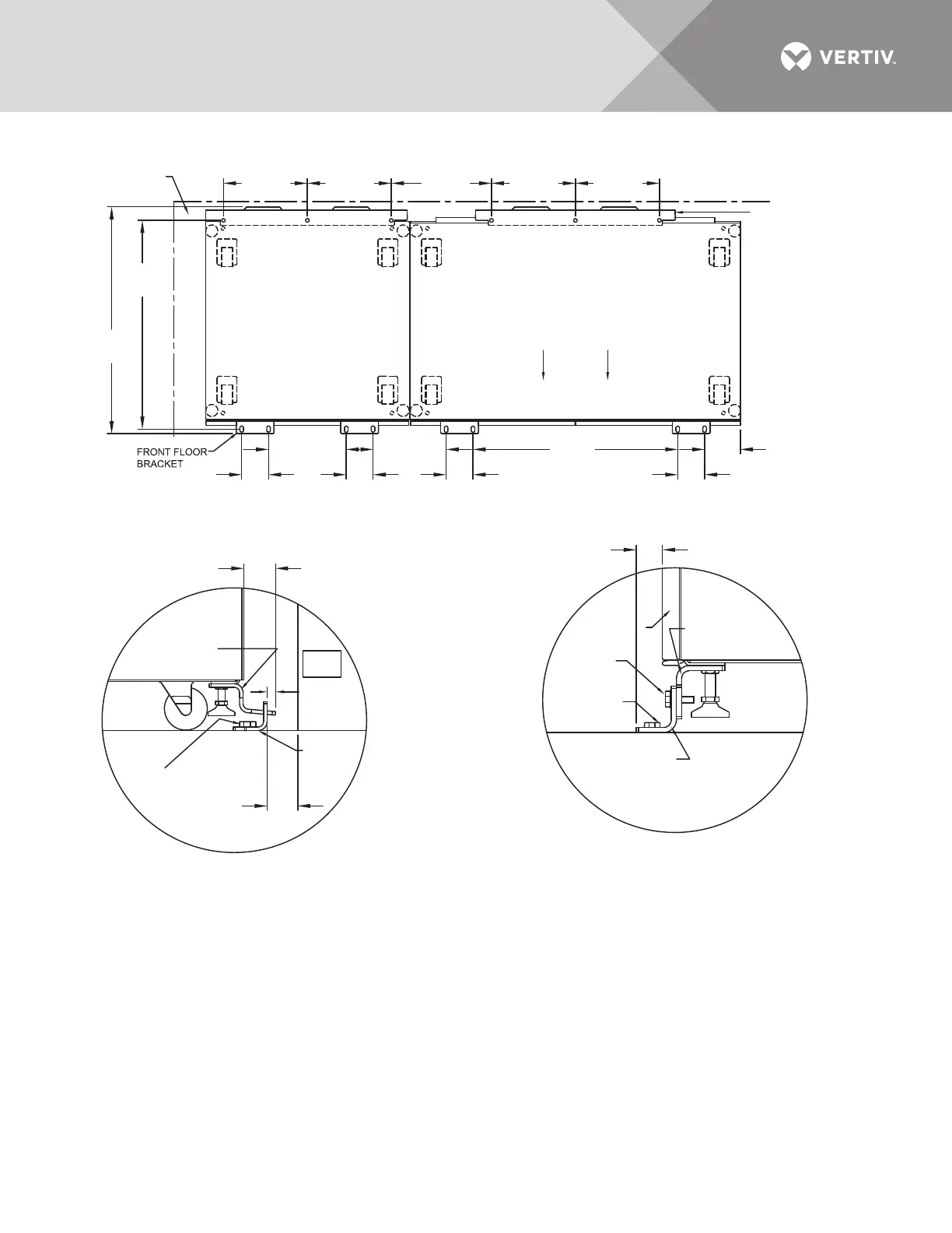
Figure 12 Seismic anchor drawing: 800 – 1000 amp Liebert STS2
See Note 7
for spacing
Rear Floor
Bracket
See Note 2
for spacing
Rear Cabinet
Base Bracket
Rear Floor
Bracket
Front Floor
Bracket
Floor Line
Front Door
of Cabinet
Front Cabinet
Base Bracket
Floor Anchor
Hardware
(Field-Supplied)
Floor Anchor
Hardware
(Field-Supplied)
Hardware
Supplied
13.2"
(335mm)
32.75"
(832mm)
32.2"
(817mm)
35.72"
(907mm)
13.2"
(335mm)
15.6"
(396mm)
13.2"
(335mm)
13.2"
(335mm)
Back Wall
Back
Wall
Side Wall
4.2"
(107mm)
4.2"
(107mm)
12.2"
(310mm)
11.4"
(298mm)
4.2"
(107mm)
4.2"
(107mm)
5.7"
(144mm)
3/4"
(19mm)
2.26"
(57.5mm)
1.364"
(34.6mm)
Front
TOP
System Seismic Anchoring, Figure 1
Figure 2
Figure 3
Floor Line
1/2"
(12.5mm)
Approx.
PS211805
Rev. 1
NOTES
1. Recommended floor anchor: 1/2" ITW Ramset/Red Head
self-drilling anchor; ICBO #ER-1372 or equivalent (not
supplied. Follow manufacturer's instructions.
2. Position rear floor brackets on floor at least 0.75" (19mm)
from back wall. Mark location and drill holes (Figure 1) to
a minimum depty of 4.12" (104.7mm) into the concrete.
3. Install rear cabinet base bracket (Figure 2) to existing holes
on the underside of the unit with tabs facing the back wall.
Use supplied hardware and torque to 365 lb./in. (41.2Nm).
Loosen leveling bolt locking nut and tighten after the
bracket is secured.
4. Install the front cabinet base (Figure 3) to existing holes
on the underside of the unit with the bent flange facing front.
Use the supplied hardware and torque to
365 lb./in. (41.2Nm). Loosen leveling bolt locking nut and
tighten after the bracket is secured.
5. Move the cabinet into position with the rear tabs into the
slots of the floor bracket. The tabs must extend at least
1/2" (12.7mm) through the floor bracket (Figure 2).
Then attach the front floor brackets to the front cabinet
base bracket, but do not fully tighten the hardware.
6. Mark the hole locations and remove the brackets. Drill
and install the floor brackets. The unit door can be removed
for better access. Reinstall the front floor brackets to the
front cabinet brackets with the supplied hardware and
torque to 235 lb./in. 26.5Nm), see Figure 3.
7. If side walls are present, minimum distance from either
side wall is required.
8. Rear and front floor brackets and the rear and front cabinet
base brackets are 1010 steel and approximately 1/4"
(6.4mm) thick.

Table of Contents

Related product manuals