EasyManua.ls Logo

Vertiv Liebert STS2/PDU - Figure 37 Installation Drawing, Seismic Floor Stand 800-1000 A

Vertiv Liebert STS2/PDU
144 pages
Print Icon
To Next Page IconTo Next Page
To Next Page IconTo Next Page
To Previous Page IconTo Previous Page
To Previous Page IconTo Previous Page
Loading...
Vertiv | Liebert
®
STS2
100-1000A, 50/60Hz User Manual | Rev. 12 | 11/2017 50
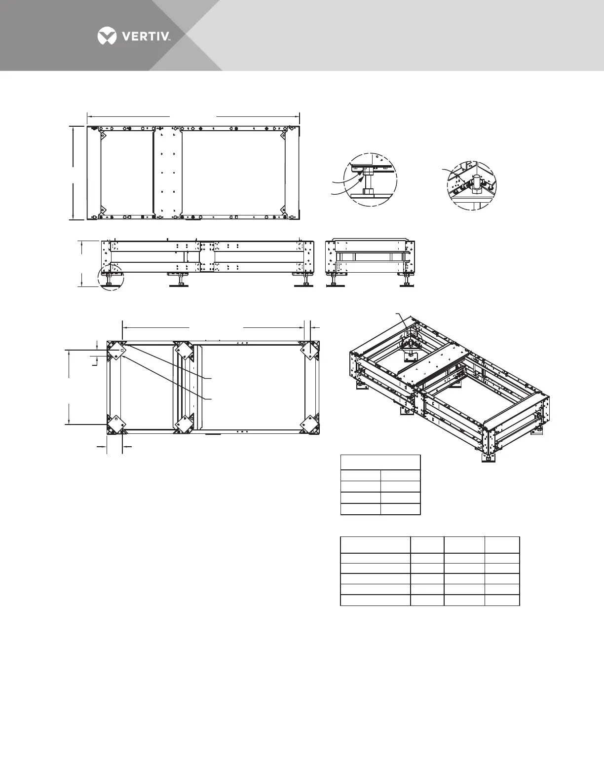
Figure 37 Installation drawing, seismic floor stand 800-1000A
A
B
TOP
FRONT
BOTTOM
ISOMETRIC
VIEW
36.9"
(937.3mm)
See Height
Table
29.44"
(747.8mm)
Typical
71.55" (1817.4mm)
2.47"
(62.7mm)
Typical
2.47"
(62.7mm)
Typical
Mounting
Plate
Align the Foot
To the Mounting
Plate as Shown
FOOT DETAIL A
FOOT DETAIL B
RIGHT SIDE VIEW
Nut
Jam Nut
Nut
Floor Stand Height
Floor Stand Part No.
Maximum
Height
Minimum
Height
523409G1 18.0"
19.25" 16.75"
523410G1 24.0"
14.0"
25.25"
15.25"
22.75"
12.75"
523411G1
30.0"
31.25" 28.75"
523412G1
542416G1
36.0"
37.25" 34.75"
6"
(152.4mm)
Typical
Hardware Torque
1.0" Nut
320 ft./lb.
M8 - 1.25
16 ft./lb.
M10 - 1.5
31 ft./lb.
M12 - 1.75
53 ft./lb.
PS217000
Rev. 3
83.9" (2131mm)
INSTALLATION NOTES
1. Check all hardware for proper torque before installation.
2. Install rear lower Liebert STS2 bracket on the floor stand using existing holes with bent
flange facing the front of the floor stand (see Figures 3 and 4 on Drawing PS217001).
Use an M12-1.75x40mm cap screw, split lock washer and flat washer. Torque to 53 ft./lb.
3. Loosen the Liebert STS2 adjustable leveling foot nuts (see Detail C, Drawing
PS217001). Install the rear upper Liebert STS2 bracket using existing holes
on the underside of the Liebert STS2 with tabs facing out (Figures 1 and 2,
Drawing PS217001). Install the front upper Liebert STS2 bracket using existing
holes on the underside of the Liebert STS2 with the bent flange facing to the front
(Figures 1 and 2, Drawing PS217001). Use an M12-1.75x40mm cap screw,
split lock washer and flat washer. Torque to 53 ft./lb. Retighten the leveling foot nuts.
4. The floor stand can be installed next to a wall if needed; rear access is
not required. Install the floor stand with its feet oriented as shown in
the bottom view of Drawing PS217000. To adjust vertical height of floor stand feet,
loosen adjust and tighten the nuts and jam nut shown in (foot Details A and B, on
DWG PS217000).The floor stand must be level and all feet must be touching the floor.
Attach the floor stand feet using 1/2" x 4" Red Head Trubolts expansion anchors
(field-supplied); two per foot.
5. Roll the Liebert STS2 onto the floor stand so that the tabs on the rear upper
Liebert STS2 bracket fit into the slots on the rear lower Liebert STS2 bracket.
The tabs must extend at least 1/2" (12.9mm) through the floor stand bracket
(Figure 2, Drawing PS217002).
6. Install the lower front brackets (Figure 1, Detail A, Drawing PS215002). Attach
the bracket to the Liebert STS2 using M10-1.50x30mm cap screw, split lock washer
and flat washer. Torque to 31 ft./lb. Attach the bracket to the floor stand using
M12-1.75x40mm cap screw, split lock washer and flat washer. Torque to 53 ft./lb.
Height

Table of Contents

Related product manuals