EasyManua.ls Logo

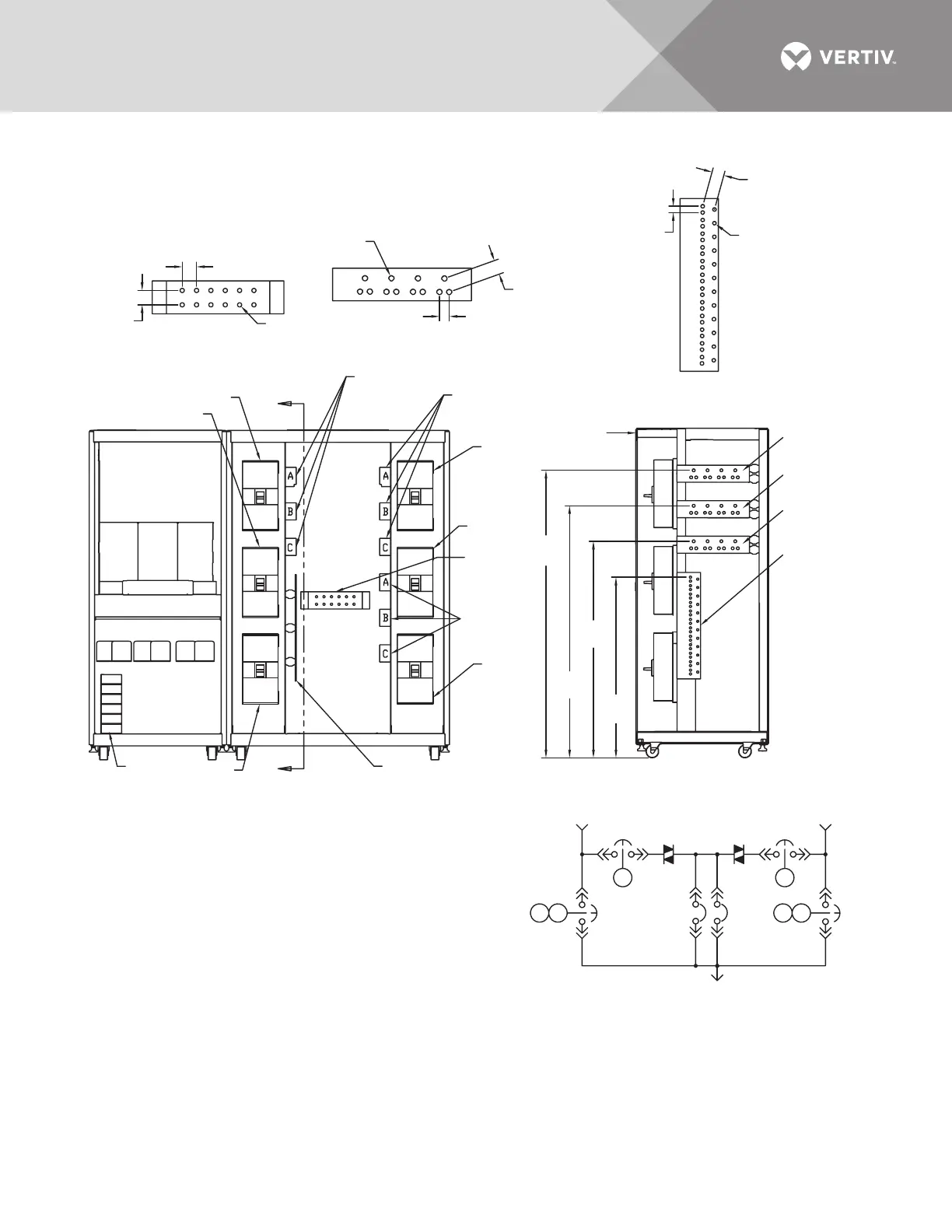
Vertiv Liebert STS2/PDU - Figure 18 Electrical Field Connections: 800 - 1000 Amp Liebert STS2 with Dual Output Breakers

Vertiv Liebert STS2/PDU
144 pages
Print Icon
To Next Page IconTo Next Page
To Next Page IconTo Next Page
To Previous Page IconTo Previous Page
To Previous Page IconTo Previous Page
Loading...
Vertiv | Liebert
®
STS2
100-1000A, 50/60Hz User Manual | Rev. 12 | 11/2017 31
Figure 18 Electrical field connections: 800 – 1000 amp Liebert STS2 with dual output breakers
1.75"
(44mm)
Typ.
1.75" (44mm)
Typ.
1/2" - 13
PEM Nut
1.75" (44mm)
Typ.
1.75" (44mm)
Typ.
1.75"
(44mm)
Typ.
0.91"
(23mm)
Typ.
1.2" (30mm)
Typ.
Ground
Bus
Neutral
Bus
Source 1
Input ØA
Source 1 Input
ØA, ØB, ØC
Source 2 Input
ØA, ØB, ØC
Source Output
ØA, ØB, ØC
Source 1
Source 1
Input ØB
Source 1
Input ØC
Source 1
Input ØC
Source 2
System Output
ONE-LINE DIAGRAM
INPUT/OUTPUT BUS
Right Side
GROUND BUS
Front
FRONT
(Panels Removed)
CB1
CB1
CB4
CB4
CB3
CB2
CB2
CB5
CB3
CB3A
CB3A
CB3A
CB5
K1
K1
K2
K2
K3
K3
PS212801
Rev. 7
NOTES
1. Top and bottom cable entry available through removable access plates.
Remove, punch to suit conduit size and replace.
2. Control wiring and power wiring must be run in separate conduit.
Output cables should be run in a separate conduit from input cables.
3. Use copper or aluminum wire (Cu-Al, Al-Cu) or equivalent.
4. All wiring must be in accordance with national and local electrical codes.
5. Hardware kit is supplied for input, output, neutral and ground cable
connections. Kit includes 1/2" bolts, washers and nuts for connecting
cables to the busbars.
6. The torque requirement for 1/2" - 13 PEM nuts is 428 in./lb (48Nm).
A
Front
NEUTRAL BUS
Right Side
SECTION A-A
Side View
Ø 0.51"
(13mm)
Typ.
Ø 0.51"
(13mm)
Typ.
67.2"
(1707)
50.6"
(1285)
58.9"
(1488)
42.2"
(1072)
A
Option Box
Refer to
PS213800

Table of Contents

Related product manuals