EasyManua.ls Logo

ABB ACS310 - Frame Size R4, IP20 (Cabinet Installation); UL Open

ABB ACS310
376 pages
Print Icon
To Next Page IconTo Next Page
To Next Page IconTo Next Page
To Previous Page IconTo Previous Page
To Previous Page IconTo Previous Page
Loading...
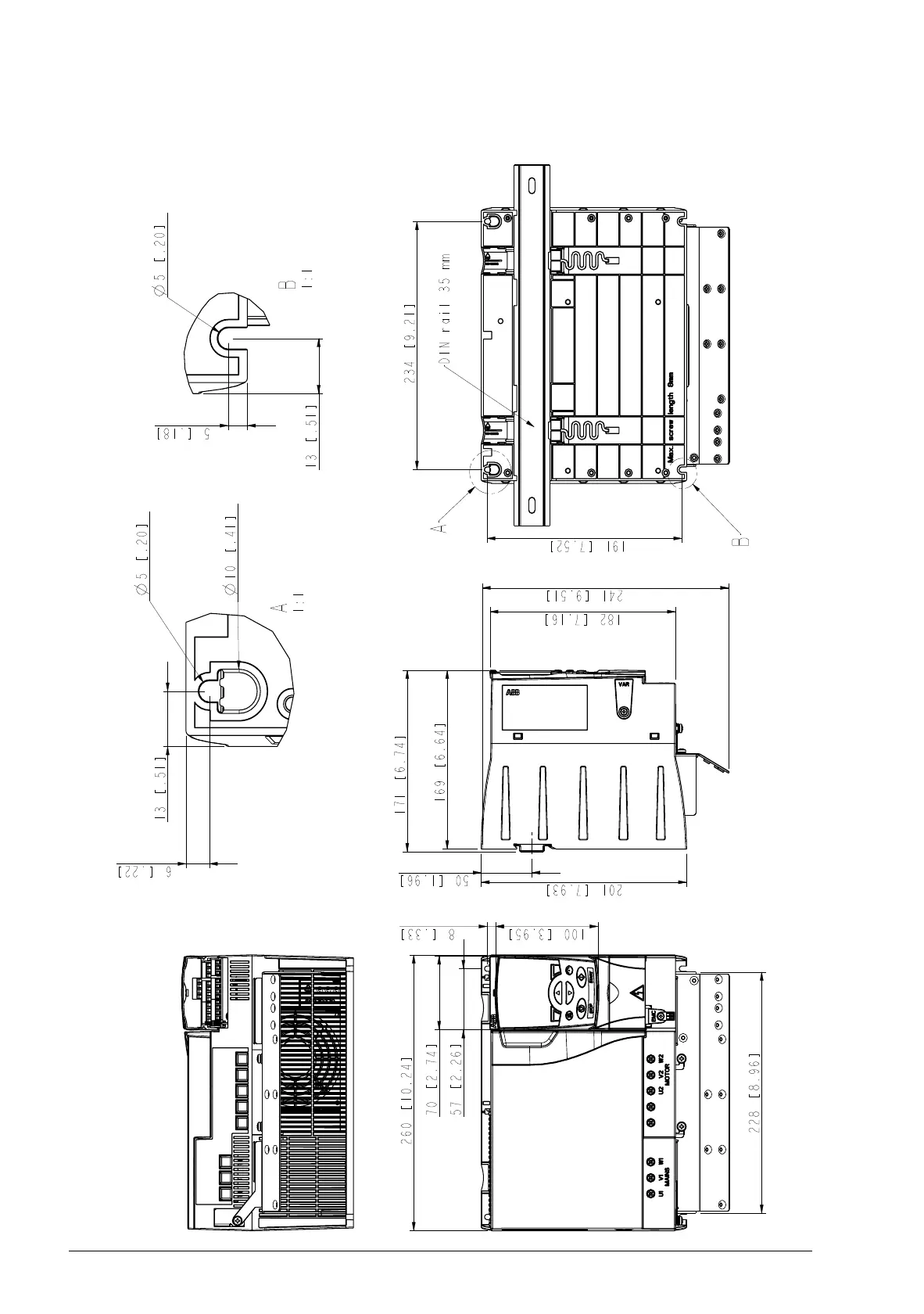
364 Dimension drawings
Frame size R4, IP20 (cabinet installation) / UL open
Frame size R4, IP20 (cabinet installation) / UL open
3AUA0000051130-A
Aotewell Ltd
www.aotewell.com
Industry Automation
HongKong|UK|China
sales@aotewell.com
+86-755-8660-6182

Table of Contents

Other manuals for ABB ACS310

Related product manuals