EasyManua.ls Logo

ActronAir ELY620T - Page 49

ActronAir ELY620T
92 pages
Print Icon
To Next Page IconTo Next Page
To Next Page IconTo Next Page
To Previous Page IconTo Previous Page
To Previous Page IconTo Previous Page
Loading...
Installation and Commissioning Guide
Split Tri-Capacity
49
Installation and Commissioning Guide 500-700 Tri-Capacity Split Ducted
Doc. No.0525-098 Ver. 2 210330
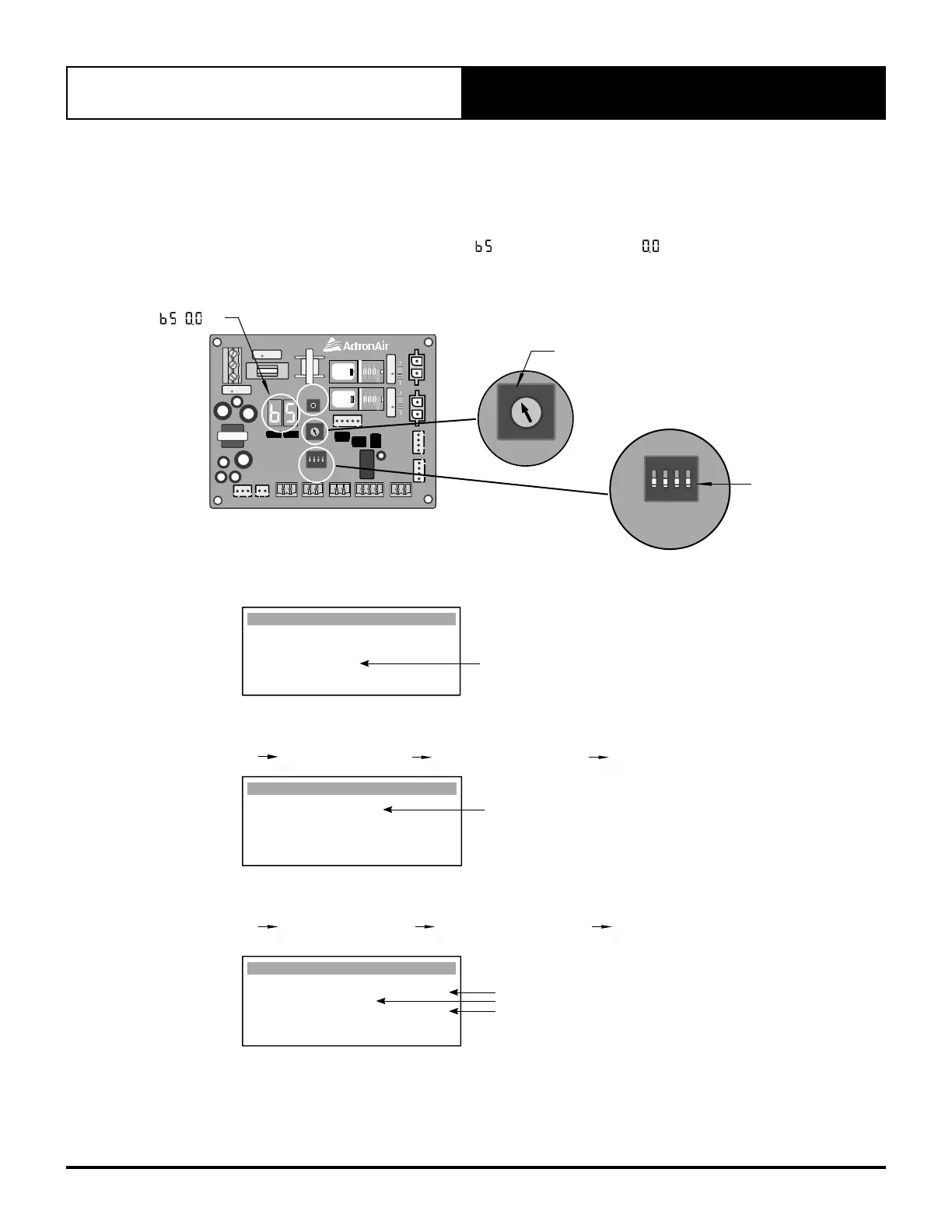
18.02.02. Fan Speed Set External Input 0-10VDC
Before performing the Indoor fan commissioning procedures below, make sure that the Unit model Set Dial on
the indoor board is set to F and the DIP switches are all OFF (See illustration below).
LED FAN STATUS Display will toggle between
(Interface Control)
and
(0-10V Out Speed Control)
.
1 2 3 4
ON
PWM1
A N
G N A
A N
PWM2
A B
485 OUTDOOR
COM NC NO
AUX OUTPUT
10V 0V
0 - 10V OUT
10V 0V
0 - 10V IN
DIP
SWITCH
POT
ADJUST
UNIT SET
COM DN
FAULT INPUT
COIL TEMPAUX SENSOR
0
1
9
5
D
2
A
6
E
3
B
7
F
4
C
8
(CIB01)
COMMERCIAL INDOOR BOARD
LED FAN STATUS
DISPLAY
SET TO F
0
1
9
5
D
2
A
6
E
3
B
7
F
4
C
8
UNIT SET
MAKE SURE ALL
DIP SWITCHES
ARE OFF FOR
INTERFACE
OPERATION
1 2 3 4
ON
DIP
SWITCH
UNIT SET
On screen C1, set the Fan Mode to operate in either Continuous or Auto cycle (Auto cycle will cycle the
indoor fans on/off with the compressor).
Select Auto Cycle or Continuous Indoor Fan operation
Heat / Cool C1
Mode: AUTO CHANGE OVER
Fan mode: Auto cycle
On screen Gfc13, set the Type of fans fitted Supply to A2FB in VARI
G. Service Gf. Service settings Gfc. Thermoregulation Gfc13. S. Configuration
A2FB In VARI
S. Conguration Gfc13
Type of fans tted :
Supply : A2FB In VARI
Outdoor : 2 SPEED AC
Outdoor Init Speed
OF1: 60.0% OF23: 60.0%
Econ. cycle tted : Yes
Econ. type: MODULATE
On screen Gfc8, set a multi input (example shown is multi input 1) to YES,
*
0-10v IN FAN SPD.
*
and 0-10V.
G. Service Gf. Service settings Gfc. Thermoregulation Gfc8 S. Configuration
Sensor present :
Multi Input 1 : YES
*0-10v IN FAN SPD.*
Probe type: 0-10V
Multi Input 2 : NO
S. Conguration Gfc8
Change to
*
0-10v IN FAN SPD.
*
Change Probe type to 0-10V
YES

Table of Contents

Related product manuals