EasyManua.ls Logo

Amada HFA-400 - Location

Default Icon
174 pages
Print Icon
To Next Page IconTo Next Page
To Next Page IconTo Next Page
To Previous Page IconTo Previous Page
To Previous Page IconTo Previous Page
Loading...
II-2
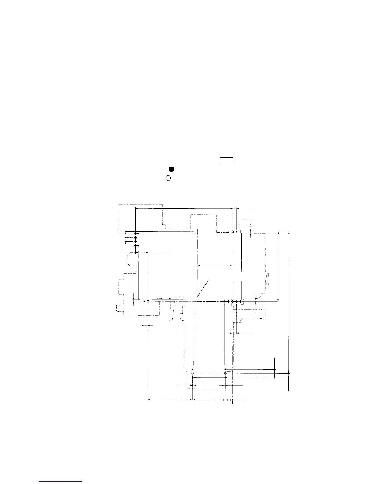
LOCATION
Install the machine on a firm and level floor. It is best to install the
machine on a concrete floor to prevent distortion from ground
subsidence, among other things.
Place base plates (150 mm {5.91 in.} square and 12 mm {0.47 in.} thick)
where the machine is to be located. There is no particular need to
install the machine on a raised foundation, but if the machine is likely to
vibrate, secure its legs with anchor bolts. (See the foundation drawing
below).
Allow enough space around the machine for loading work, unloading
cut-off pieces, and for maintaining and inspecting the machine.
HFA-250 and HFA-250W foundation drawing
Position where machine leg rests on floor:
Leveling bolt position:
Anchor bolt position:
Unit: mm {in.}
1226.5 {48.29}
50 {1.97}
881 {34.69}
17
{0.67}
78 {3.07}
50
{1.97}
17 {0.67}
50
{1.97}
446 {17.56}
1787 {70.35}
50 {1.97}
17
{0.67}
50 {1.97}
57
{2.24}
17 {0.67}
89 {3.50}
414 {16.30}
17 {0.67}
563 {22.17}
STATIONARY VISE
JAW SURFACE
160.5 {6.32}

Table of Contents

Related product manuals