EasyManua.ls Logo

Asyst Technologies VersaPort 2200 - Electrical Safety; Mechanical Safety; Chemical Safety; Tool Requirements

Default Icon
288 pages
Print Icon
To Next Page IconTo Next Page
To Next Page IconTo Next Page
To Previous Page IconTo Previous Page
To Previous Page IconTo Previous Page
Loading...
Page 40 2000-1252-01 Released Rev. C
VersaPort 2200 Technical Manual
Chapter 2: Theory of Operation
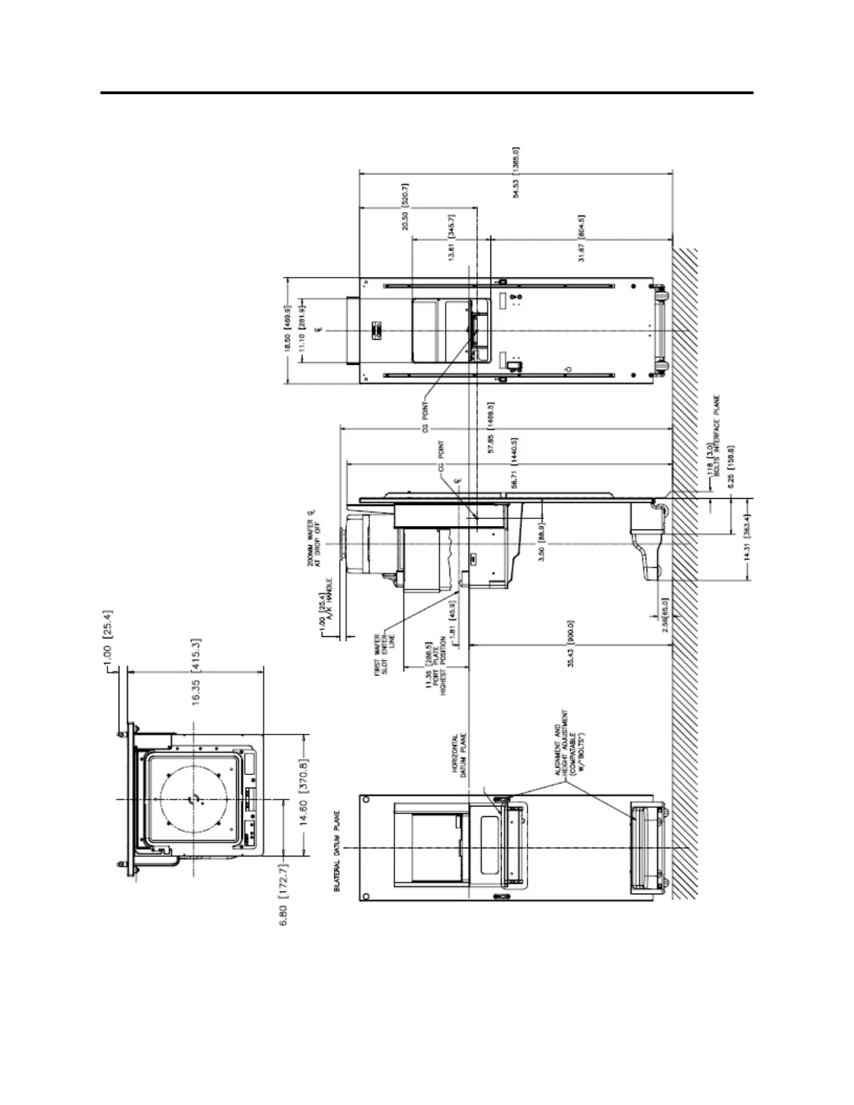
Specifications and Outline Drawing
a
FIGURE 16 BOLTS Interface

Table of Contents