EasyManua.ls Logo

Condair CP3 - 3.6 Overview unit interconnection

Condair CP3
80 pages
Print Icon
To Next Page IconTo Next Page
To Next Page IconTo Next Page
To Previous Page IconTo Previous Page
To Previous Page IconTo Previous Page
Loading...
13
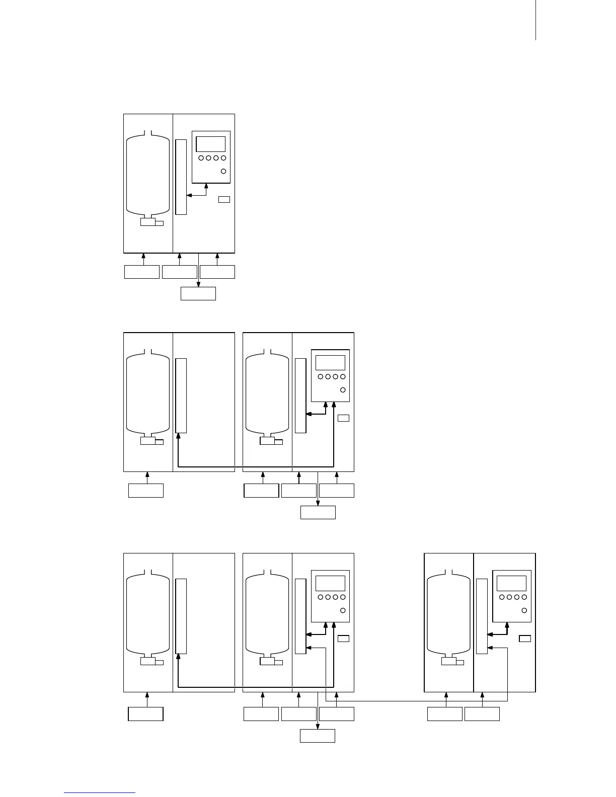
3.6 Overview unit interconnection
Single unit (CP3 5...45)
I/O
I/O I/O
I/O
Main unit, Module A
(CP3 5 ... 45)
Power board
Control board
Heating
voltage
Control
voltage
Control signal
Remote
indication RFI
Main unit, Module B
(CP3 46 ... 90)
Power board
Heating
voltage
Main unit, Module A
(CP3 5 ... 45)
Control board
Power board
Ribbon cable
Heating
voltage
Control
voltage
Control signal
Remote
indication RFI
Main unit, Module B
(CP3 46 ... 90)
Power board
Heating
voltage
Main unit, Module A
(CP3 5 ... 45)
Control board
Power board
Ribbon cable
Heating
voltage
Control
voltage
Control signal
Remote
indication RFI
Extension unit, Module A
(CP3 91... 135)
Control board
Power board
Bus cable max. 50 m
Heating
voltage
Control
voltage
Double unit (CP3 5...90)
Double unit + single unit (CP3 Pro 5...135) or two double units (CP3 Pro 5...180)
--->LinkUpsystems,Proversionsonly

Table of Contents

Related product manuals