EasyManua.ls Logo

Condair CP3 - 5.2 Mounting the unit; 5.2.1 Notes on locating the unit

Condair CP3
80 pages
Print Icon
To Next Page IconTo Next Page
To Next Page IconTo Next Page
To Previous Page IconTo Previous Page
To Previous Page IconTo Previous Page
Loading...
25
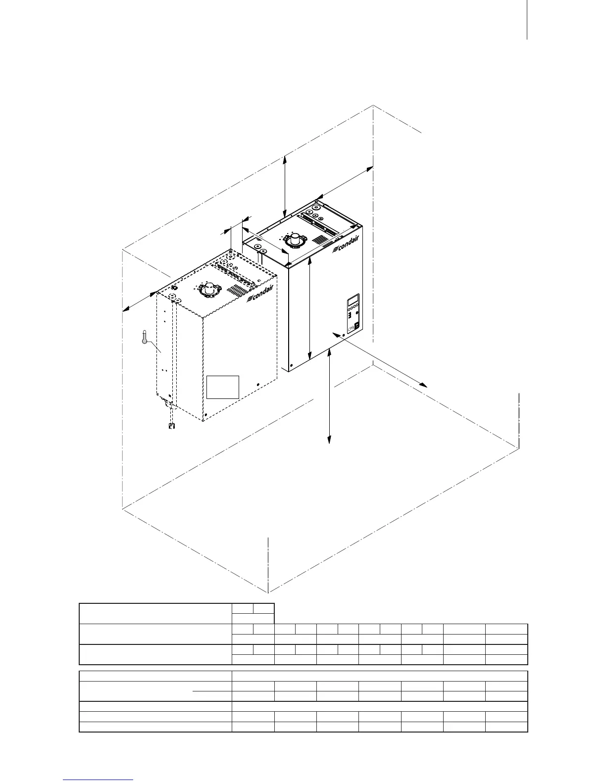
min. 400 mm
B
min. 600 mm
H
min. 250 mm
min. 400 mm
min. 600 mm
50 mm
60...70 °C
1 ... 40 °C
max. 75 %rh
IP20
T
5.2 Mounting the unit
5.2.1 Notes on locating the unit
Condair CP3 ... 230V1
Basic Pro
5...8
Condair CP3 ... 230V3
Basic Pro Basic Pro Basic Pro Basic Pro Basic Pro Pro Pro
5...8 9...15 16...21 22...30 44/50/60 75/90 100/120
Condair CP3 ... 400V3
Basic Pro Basic Pro Basic Pro Basic Pro Basic Pro Pro Pro
5...8 9...15 16...25 26...45 52/60/70/80/90 105/120/135 152/160/180
Dimensions
Housing (BxHxT) in mm 456x620x280 1 1
559x667x350 1 1 2 3 4
Weights
Net weight in kg 21 21 28 28 2x 28 3x 28 4x 28
Operating weight in kg 26 32 65 65 2x 65 3x 65 4x 65
Module A
Module B

Table of Contents

Related product manuals