EasyManua.ls Logo

Danfoss VLT AutomationDrive FC 300 - Page 116

Danfoss VLT AutomationDrive FC 300
296 pages
To Next Page IconTo Next Page
To Next Page IconTo Next Page
To Previous Page IconTo Previous Page
To Previous Page IconTo Previous Page
Loading...
130BC517.11
250
[9.8]
844
[33.2]
889
[35.0]
909
[35.8]
130
[5.1]
656
[25.8]
200
[7.9]
180
[7.1]
495
[19.5]
660
[26.0]
61
[2.4]
148
[5.8]
82
[3.2]
18
[0.7]
375
[14.8]
20
[0.8]
200
[7.9]
77.5
[3.1]
122.5
[4.8]
26
[1.0]
844
[33.2]
128
[5.0]
1
4
2
3
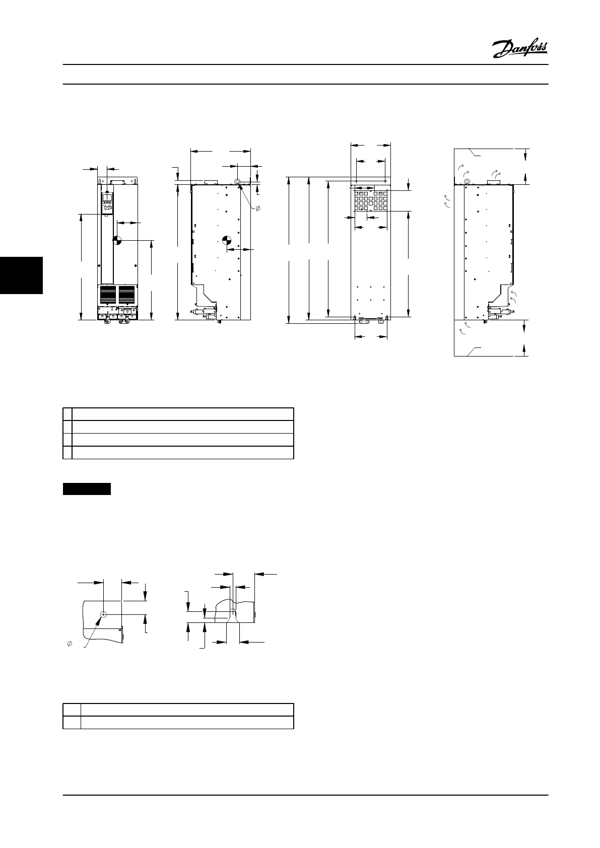
Figure 6.11 Mechanical Dimensions, D3h
1
Ceiling
2 Air space outlet minimum 225 mm [8.9 in]
3 Air space inlet minimum 225 mm [8.9 in]
4 Floor
Table 6.5 Legend to Figure 6.11
NOTICE!
If using a kit to direct the airflow from the heatsink to
the outside vent on the back of the adjustable frequency
drive, the required ceiling clearance is 4 in [100 mm].
1 2
33
[1.3]
25
[1.0]
24
[0.9]
20
[0.8]
40
[1.6]
11
[0.4]
9
[0.3]
11
[0.4]
130BD517.10
Figure 6.12 Detail Dimensions, D3h
1 Top mounting hole detail
2 Bottom mounting slot detail
Table 6.6
Mechanical Installation Design Guide
114 Danfoss A/S © Rev. 2014-02-10 All rights reserved. MG34S222
66

Table of Contents

Other manuals for Danfoss VLT AutomationDrive FC 300

Related product manuals