EasyManua.ls Logo

Danfoss VLT AutomationDrive FC 300 - Page 118

Danfoss VLT AutomationDrive FC 300
296 pages
Print Icon
To Next Page IconTo Next Page
To Next Page IconTo Next Page
To Previous Page IconTo Previous Page
To Previous Page IconTo Previous Page
Loading...
130BD463.10
149
[5.9]
731
[28.8]
1107
[43.6]
381
[15]
115
[4.5]
23
[0.9]
16.1
[6.3]
1277
[50.3]
123
[4.8]
1324
[52.1]
1276
[50.2]
200
[7.9]
78
[3.1]
123
[4.8]
78
[3.1]
200
[7.9]
220
[8.7]
130
[5.1]
200
[7.9]
1111
[43.7]
130
[5.1]
325
[12.8]
306
[12.1]
276
[10.9]
180
[7.1]
2
1
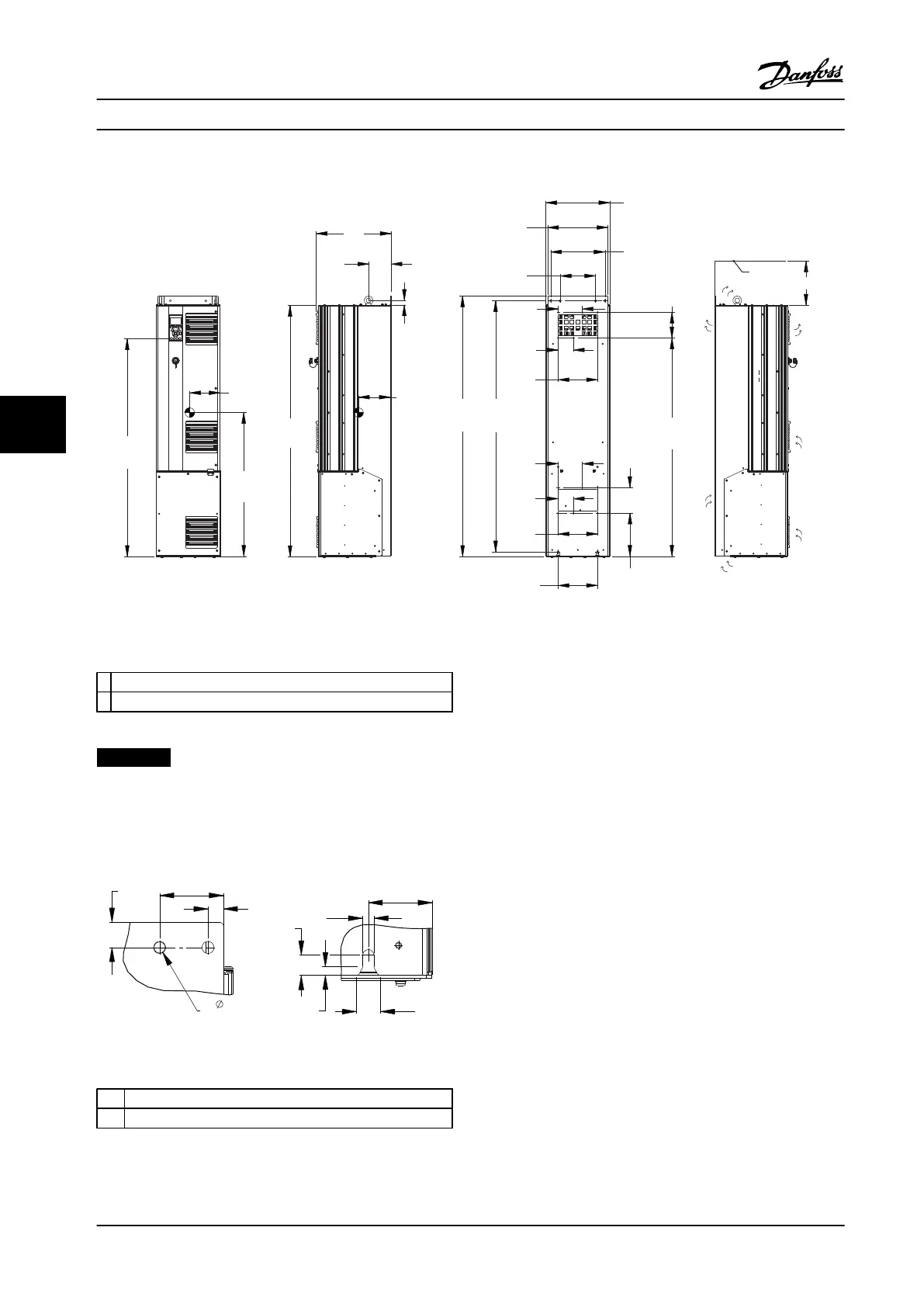
Figure 6.15 Mechanical Dimensions, D5h
1
Ceiling
2 Air space outlet minimum 225 mm [8.9 in]
Table 6.9 Legend to Figure 6.15
NOTICE!
If using a kit to direct the airflow from the heatsink to
the outside vent on the back of the adjustable frequency
drive, the required ceiling clearance is 4 in [100 mm].
64
[2.5]
63
[2.5]
24
[0.9]
9
[0.3]
25
[1.0]
11
[0.4]
20
[0.8]
15
[0.6]
11
[0.4]
4X
1 2
130BD518.10
Figure 6.16 Detail Dimensions, D5h
1 Top mounting hole detail
2 Bottom mounting slot detail
Table 6.10 Legend to Figure 6.16
Mechanical Installation Design Guide
116 Danfoss A/S © Rev. 2014-02-10 All rights reserved. MG34S222
66

Table of Contents

Other manuals for Danfoss VLT AutomationDrive FC 300

Related product manuals