EasyManua.ls Logo

Danfoss VLT AutomationDrive FC 300 - Page 183

Danfoss VLT AutomationDrive FC 300
296 pages
Print Icon
To Next Page IconTo Next Page
To Next Page IconTo Next Page
To Previous Page IconTo Previous Page
To Previous Page IconTo Previous Page
Loading...
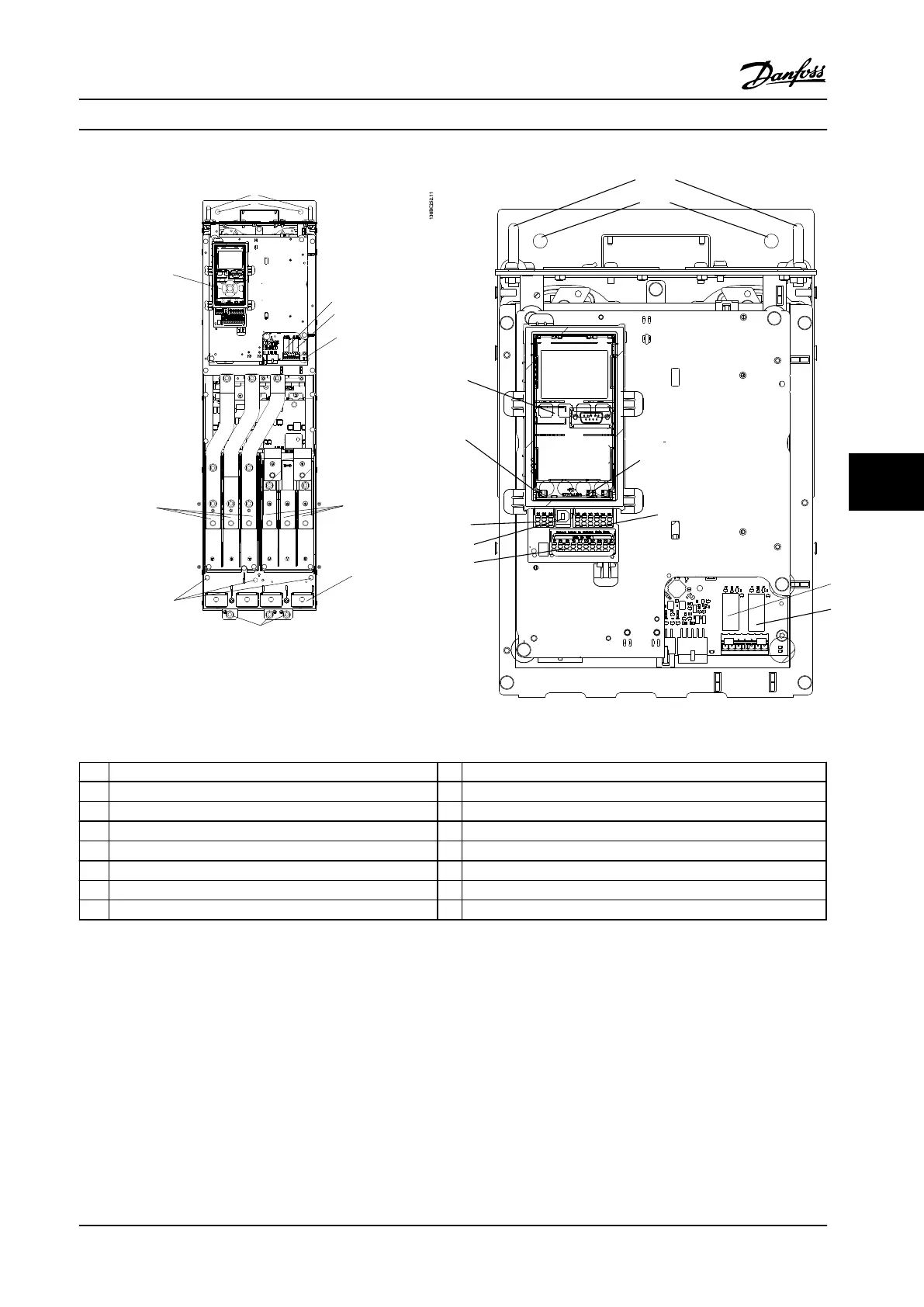
D-frame Interior Components
130BC252.11
1
15
14
8
9
12
13 (IP 20/Chassis)
13
(IP 21/54
NEMA 1/12)
11
10
16
Figure 7.3 D-frame Interior Components
130BC301.11
1
2
3
4
5
6
7
8
9
10
11
Figure 7.4 Close-up View: LCP and Control Functions
1
LCP (Local Control Panel) 9 Relay 2 (04, 05, 06)
2 RS-485 serial bus connector 10 Lifting ring
3 Digital I/O and 24 V power supply 11 Mounting slot
4 Analog I/O connector 12 Cable clamp (PE)
5 USB connector 13 Ground
6 Serial bus terminal switch 14 Motor output terminals 96 (U), 97 (V), 98 (W)
7 Analog switches (A53), (A54) 15 Line power input terminals 91 (L1), 92 (L2), 93 (L3)
8 Relay 1 (01, 02, 03)
Table 7.3 Legend to Figure 7.3 and Figure 7.4
Electrical Installation
Design Guide
MG34S222 Danfoss A/S © Rev. 2014-02-10 All rights reserved. 181
7 7

Table of Contents

Other manuals for Danfoss VLT AutomationDrive FC 300

Related product manuals