EasyManua.ls Logo

Fike Clean Agent System - Mounting Details 215 Lb. (90 L) Container

Fike Clean Agent System
140 pages
Print Icon
To Next Page IconTo Next Page
To Next Page IconTo Next Page
To Previous Page IconTo Previous Page
To Previous Page IconTo Previous Page
Loading...
SECTION 4 – SYSTEM INSTALLATION
UL / ULC Ex4623 Fike Clean Agent System w/ FM-200™ Page 5 of 21
FM 3010715 Manual P/N: 06-215 (Rev G) Revision Date: January, 2010
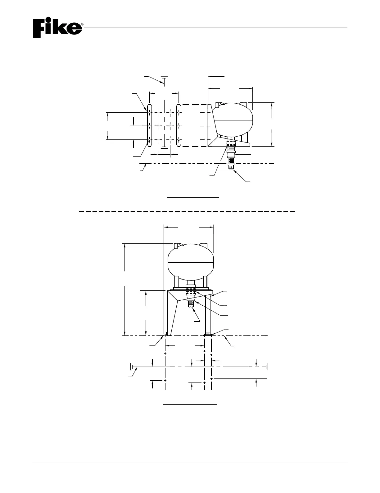
4.1.2.2 MOUNTING DETAILS FOR 215 lb. (90 L) CONTAINER, P/N 70-077
ALL DIMENSIONS ARE APPROXIMATE
WALL MOUNTING SURFACE
23 1/4"
2 1/2" x 2" REDUCER
(65 mm x 50 mm)
(591 mm)
MOUNTING SURFACE
1 1/2" NPT PIPE CUT TO
18 3/8" (467 mm) LONG
VICTAULIC COUPLING
26 1/4"
22 1/2"
(572 mm)
(152 mm)
6"
DRILL PATTERN
C
L
ANGLE IRON BRACE
45 3/4" (1162 mm)
APPROX.
FLOOR MOUNT DETAIL
(248 mm)
9 3/4"
2 1/2" (64 mm)
7 1/4"
(184 mm)
(508 mm)
20"
(667 mm)
SCH. 40
STRAP, (IF REQ'D.)
1/2" (15 mm) STUD AND
NUT (TYP.)
FALSE CEILING
(REF.)
(457 mm)
18"
9"
(229 mm)
P/N 70-1119 MOUNTING
DRILL PATTERN
L
C
(406 mm)
(616 mm)
WALL MOUNT DETAIL
(203 mm)
VICTAULIC COUPLING
8"
NOZZLE
16"
24 1/4"
PIPING
1 1/2" NPT FLOOR FLANGE
BELL REDUCER

Table of Contents