EasyManua.ls Logo

Fike FCP-300 - Output Circuit Mapping; Event Mapping

Fike FCP-300
175 pages
Print Icon
To Next Page IconTo Next Page
To Next Page IconTo Next Page
To Previous Page IconTo Previous Page
To Previous Page IconTo Previous Page
Loading...
Mapping Overview Programming Overview
FCP-300/FCP-300ECS Manual — P/N LS10145-002FK-E:A 3/12/2021 77
8.2.2 Output Circuit Mapping
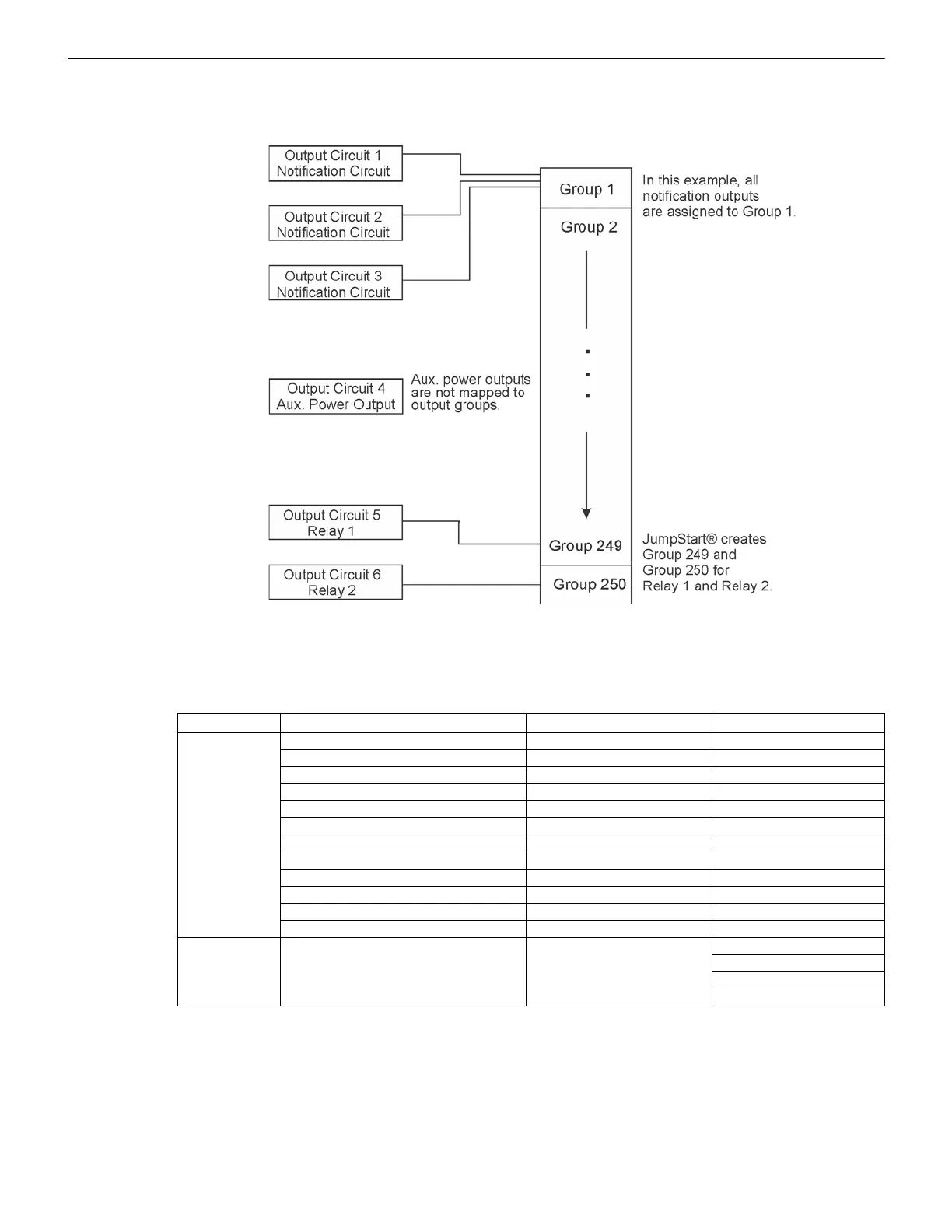
Figure 8.3 is a simple example showing how to assign the notification and the relay output circuits to groups. For an example
of a simple floor above/floor below application, see Figure 8.5.
Figure 8.3 Assigning Output Circuits to Groups (Example)
8.2.3 Event Mapping
There are 11 types of Zone events, 14 types of Panel events, and 40 types of Site events that can be mapped. For each event
type, you can activate the output groups with specific output patterns. Mapping examples are shown in Figure 8.4, Figure 8.5,
& Figure 8.7
System Zone Panel Site
Fire
Manual Pull Alarm System Aux 1 Alarm Fire Drill
Water Flow Alarm System Aux 2 Alarm General Fire Alarm
Detector Alarm (heat or smoke detectors) General Fire Supervisory
Zone Aux 1 Alarm General Fire Pre-Alarm
Zone Aux 2 Alarm
Interlock Alert
Interlock Release
Pre-Alarm
Fire Supervisory
Status Point
CO Alarm
CO Supervisory
Emergency
LOC ECS 1-8 Alarm
General ECS Alarm
General ECS Supervisory
Point ECS 1-8 Alarm
Table 8.2 Event Types

Table of Contents

Other manuals for Fike FCP-300

Related product manuals