EasyManua.ls Logo

Fujitsu Primergy RX200 S4 - Server (Inside)

Fujitsu Primergy RX200 S4
269 pages
To Next Page IconTo Next Page
To Next Page IconTo Next Page
To Previous Page IconTo Previous Page
To Previous Page IconTo Previous Page
Loading...
27
PRIMERGY RX200 S4 User's Guide
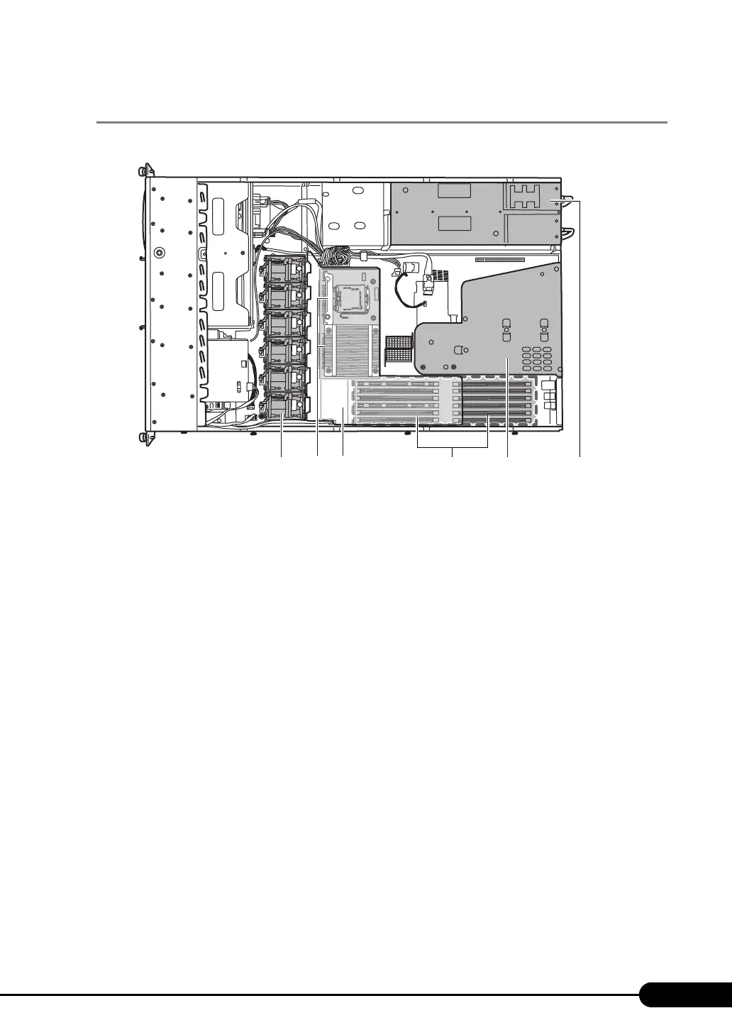
1.3.3 Server (Inside)
a System fan
Contact an office listed in the "Contact Information" of the "Start Guide" for the system fan
replacement.
b CPU socket
Install the CPU. One CPU is installed by default. Up to two CPUs can be installed.
c Fan duct
d Memory slot
Install memory modules.
e Card fix frame
Install various expansion cards that enhance the function of this server. Expansion cards with a
PCI bus interface can be installed in the PCI slot.
f Power supply unit
Install the power supply unit. One unit is installed by default. Up to two units can be installed.
[Front]
[Rear]
a b dfc e

Table of Contents

Other manuals for Fujitsu Primergy RX200 S4

Related product manuals