EasyManua.ls Logo

IAI SCON-CA - Page 50

IAI SCON-CA
370 pages
Print Icon
To Next Page IconTo Next Page
To Next Page IconTo Next Page
To Previous Page IconTo Previous Page
To Previous Page IconTo Previous Page
Loading...
Chapter 1 Specications Check
40
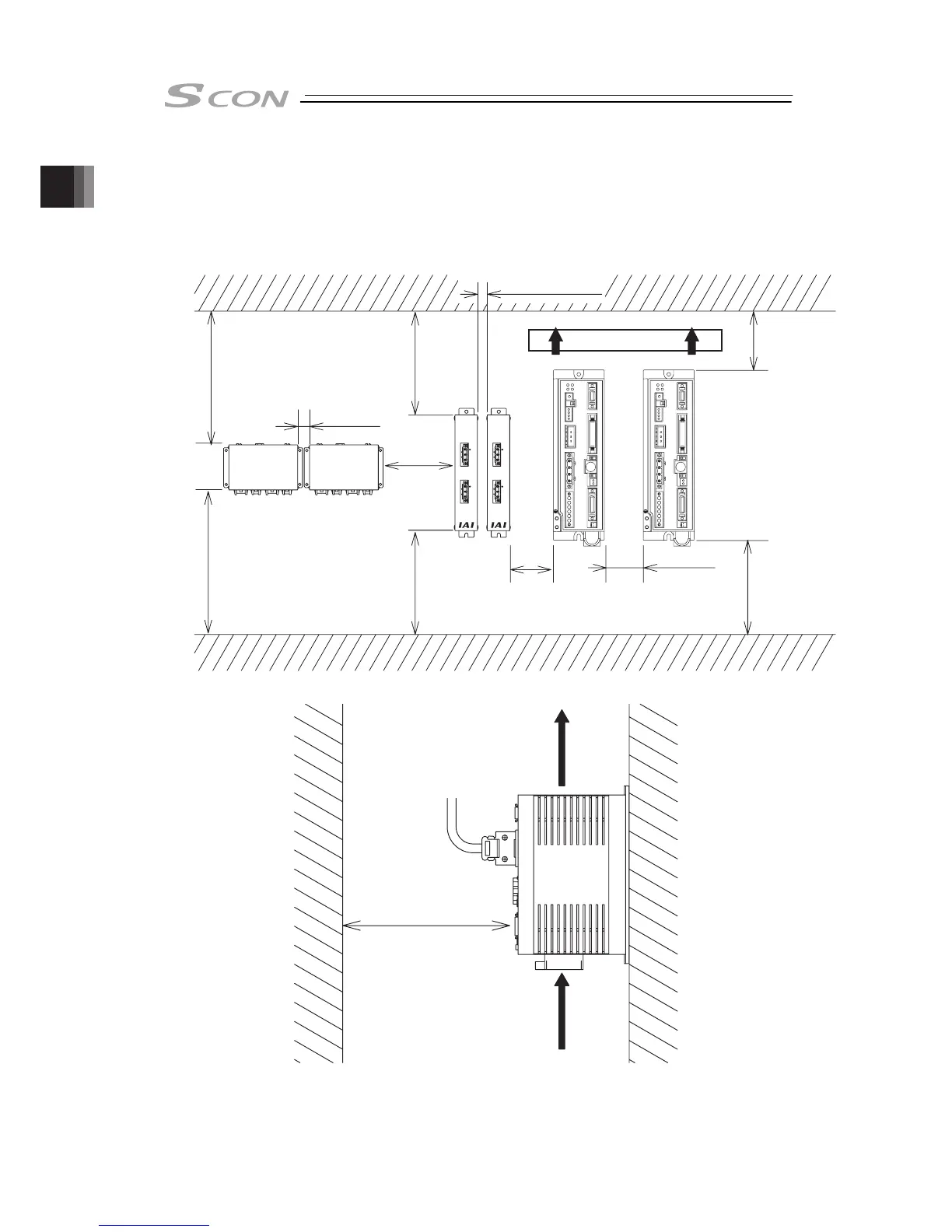
(4) Heat Radiation and Installation
Design and Build the system considering the size of the controller box, location of the controller
and cooling factors to keep the ambient temperature around the controller below 40°C
Please fan to make the ambient temperature even.
SCON-CA
150mm or more
Air Flow
Brake Box
Regeneration
Unit
Air Flow
Fan
10mm
or more
100mm
or more
50mm
or more
50mm
or more
100mm
or more
30mm
or more
50mm
or more
50mm
or more
50mm
or more
50mm
or more
10mm or more

Table of Contents

Other manuals for IAI SCON-CA

Related product manuals