EasyManua.ls Logo

IAI SCON-CA - Page 66

IAI SCON-CA
370 pages
Print Icon
To Next Page IconTo Next Page
To Next Page IconTo Next Page
To Previous Page IconTo Previous Page
To Previous Page IconTo Previous Page
Loading...
Chapter 2 Wiring
56
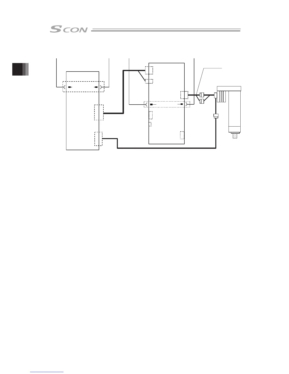
2) Connection of RCS2-RA13R actuator equipped with brake or NS-type equipped with brake
SCON
PG
MOT
Brake Box
(RCB-110-RA13)
24VIN 0V
CB-RCS2
-PLA□□□
CONTROLLER1
Encoder Input
Connector
Limit Switch
Connector
Limit Switch
Connector
ACTUATOR1
Encoder Output
Connector
24V DC 0V
• NS Type
• RCS2-RA13R
[Example]
RCS2-RA13R
BK+
24V DC 0V
CB-RCC-MA□□□
CB-RCS2
-PLA□□□
PWR-
Brake Power
Supply Connector
CONTROLLER2
Encoder Input
Connector
ACTUATOR2
Encoder
Connector
Encoder
Connector
Motor
Connector
(Equipped with brake)

Table of Contents

Other manuals for IAI SCON-CA

Related product manuals