EasyManua.ls Logo

IAI SCON-CA - Pulse Train Control Mode Wiring Diagrams

IAI SCON-CA
370 pages
Print Icon
To Next Page IconTo Next Page
To Next Page IconTo Next Page
To Previous Page IconTo Previous Page
To Previous Page IconTo Previous Page
Loading...
Chapter 2 Wiring
57
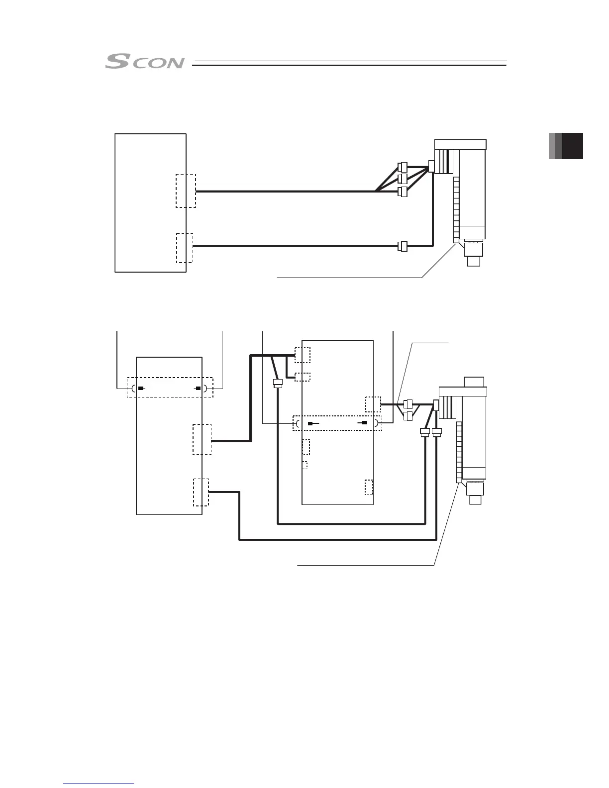
3) Connection of actuator RCS2-RA13R equipped with loadcell but not equipped with brake
SCON
RCS2-RA13R
(Equipped with loadcell)
MOT
Motor
Connector
Brake Power
Supply Connector
PG
Encoder
Connector
CB-RCS2-PLLA□□□
CB-RCC-MA□□□
CB-LDC-CTL□□□ (Cable in the cable track)
4) Connection of actuator RCS2-RA13R equipped with loadcell and brake
SCON
Brake Box
(RCB-110-RA13)
24VIN 0V
CONTROLLER1
Encoder Input
Connector
Limit Switch
Connector
Limit Switch
Connector
ACTUATOR1
Encoder Output
Connector
24V DC 0V
RCS2-RA13R
(Equipped with brake and loadcell)
BK+
24V DC 0V
CB-RCS2
-PLA□□□
PWR-
CONTROLLER2
Encoder Input
Connector
ACTUATOR2
Encoder
Connector
MOT
Motor
Connector
Brake Power
Supply Connector
PG
Encoder
Connector
CB-RCC-MA□□□
CB-RCS2
-PLLA□□□
CB-LDC-CTL□□□-JY (only when force control is used)
CB-LDC-CTL□□□ (Cable in the cable track)

Table of Contents

Other manuals for IAI SCON-CA

Related product manuals