EasyManua.ls Logo

IBM 300 - NAS Installation into a 37 U Rack (Standard); Bracket Positioning for the NAS in a 37 U Rack; Brackets Installation

IBM 300
160 pages
Print Icon
To Next Page IconTo Next Page
To Next Page IconTo Next Page
To Previous Page IconTo Previous Page
To Previous Page IconTo Previous Page
Loading...
NAS Installation into a 37U Rack (Standard)
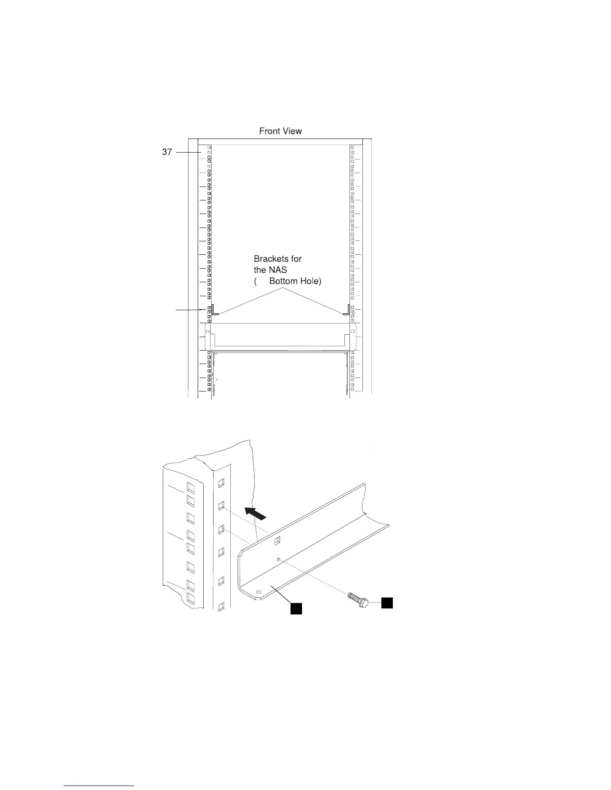
1. ____ Install the brackets (PN 43G3111) for the NAS if not already done. See
Figure 1-5 for bracket positioning and Figure 1-6 for bracket installation.
2. ____ Install the plate «A¬ (PN 42L2850). Secure it with four 8-mm M6 screws.
(See Figure 1-7 on page 1-7.)
3. ____ See Figure 1-8 on page 1-7 and install the NAS on the brackets.
25
25
Figure 1-5. Bracket Positioning for the NAS in a 37U Rack
1
2
Figure 1-6. Brackets Installation
Installing the NAS and Its Modem
1-6
2220 Setup and Service Guide

Table of Contents

Related product manuals